Vente Appartement 3 pièces
Type
Bien immobilierTarif
419 000 €Chambres
2Salles de bain
0Vente Appartement 3 pièces
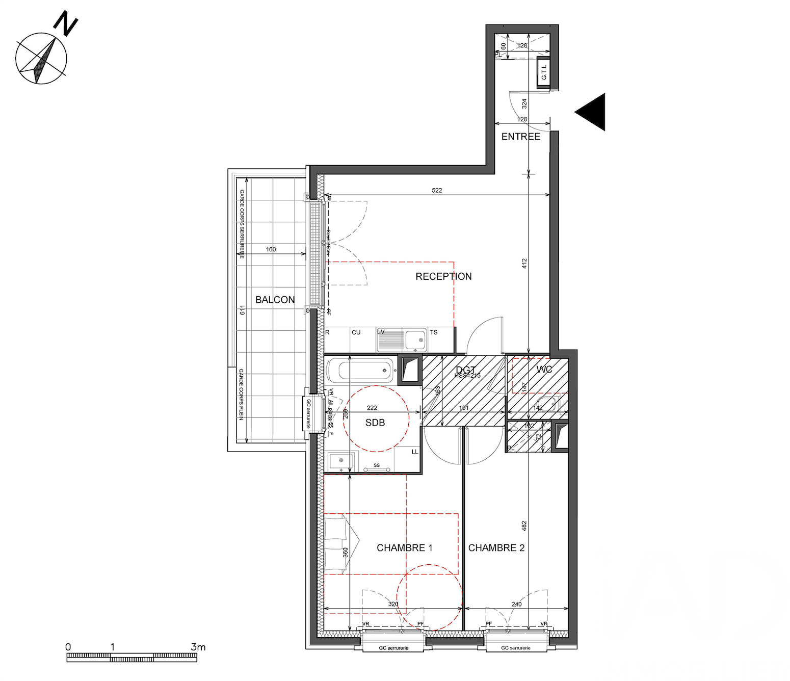
Iad France - Gaëlle Henriot vous propose : Rue Pablo Picasso - Grand Balcon Exposé Sud-Ouest - DPE B - À quelques pas du Cours des Lavandières et de la Communale, venez découvrir cet appartement lumineux, sans perte d'espace. Avec une surface de 60 m², il offre une entrée avec placard, une pièce de vie ouverte sur le balcon avec cuisine aménagée et équipée, 2 chambres avec penderies, une salle de bains avec fenêtre et des WC séparés. L'eau et le chauffage sont inclus dans les charges (chauffage urbain). Très belle isolation de l'appartement (DPE B). Construit en 2019, l'appartement se trouve dans une petite copropriété bien tenue. Situé au 4ème étage sur 5 au total, il a les avantages du dernier étage car c'est une terrasse qui recouvre l'appartement. Ne manquez pas l'opportunité de vivre dans ce quartier familial à quelques minutes de la ligne 14. Contactez-moi dès maintenant pour organiser une visite ! La presente annonce immobiliere vise 1 lot situé dans une copropriété de 56 lots au total et ne faisant l'objet d'aucune procédure en cours citée à l'article L. 721-1 du code de la construction et de l'habitation. Montant moyen mensuel de charges déclaré par le vendeur : 185€ par mois (soit 2220 € annuel). Honoraires d'agence à la charge du vendeur. Information d'affichage énergétique sur ce bien : classe ENERGIE B indice 88 et classe CLIMAT B indice 9. Les informations sur les risques auxquels ce bien est exposé, y compris l'obligation légale de débroussaillement, sont disponibles sur le site Géorisques : http://www.georisques.gouv.fr. La présente annonce immobilière a été rédigée sous la responsabilité éditoriale de Mme Gaëlle Henriot mandataire indépendant en immobilier (sans détention de fonds), agent commercial de la SAS I@D France immatriculé au RSAC de Bobigny sous le numéro 834931677, titulaire de la carte de démarchage immobilier pour le compte de la société I@D France SAS.
Détails de l'annonce
Localisation
Ville
Saint-Ouen-sur-Seine
Pays
FR
Diagnostics / Énergie
Diagnostic DPE
88
Diagnostic GES
9
Surfaces / Pièces / Composition
Nombre d’étages
5
Chauffage et diagnostics
Diagnostic de performance énergétique (DPE)
a
b
c
d
e
f
g
Indice d'émission de gaz à effet de serre (GES)
a
b
c
d
e
f
g
