Vente Appartement 3 pièces
Type
Bien immobilierTarif
225 000 €Chambres
2Salles de bain
0Vente Appartement 3 pièces
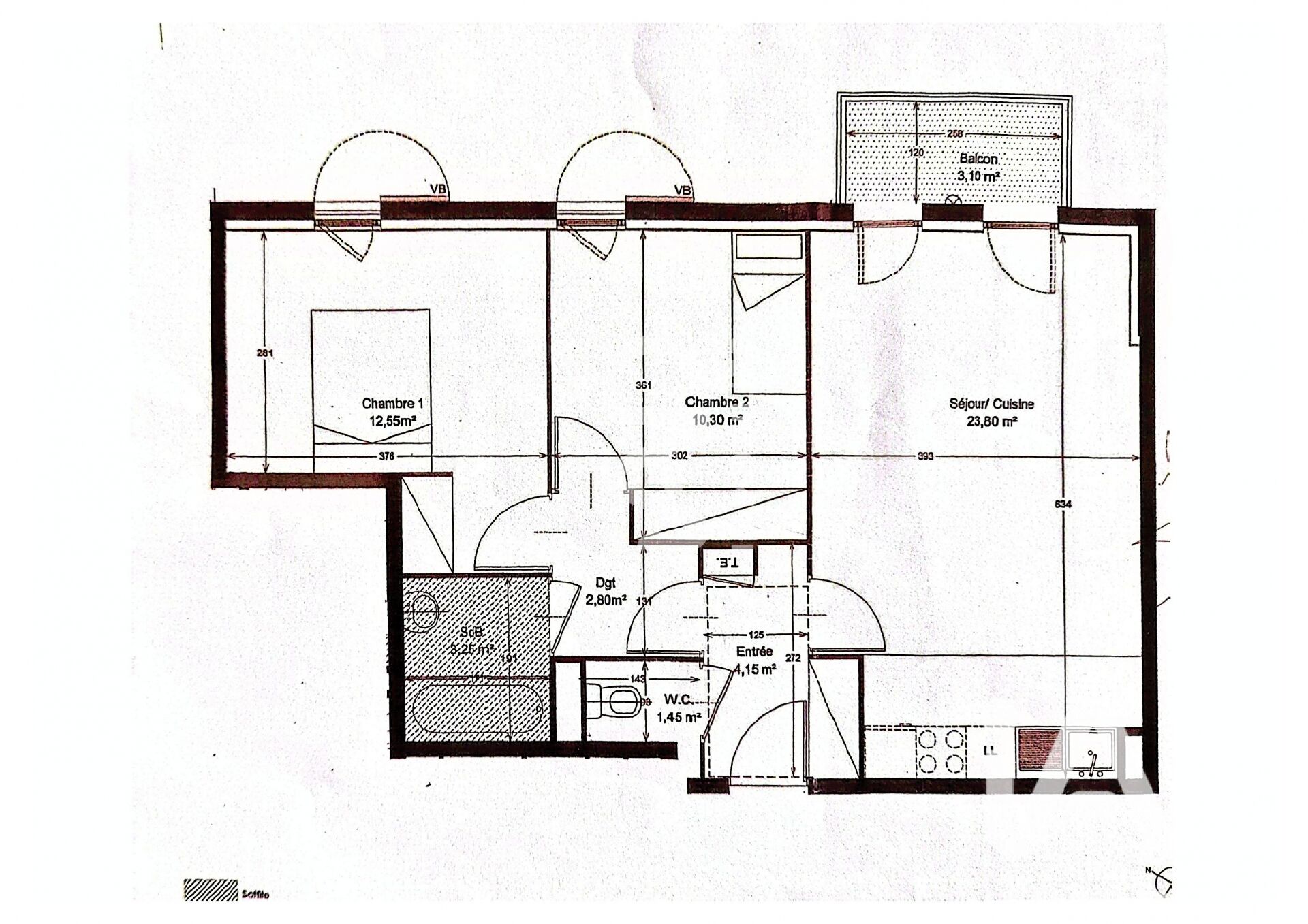
Iad France - Karine Pereira vous propose : Appartement T3 avec balcon et double parking à Yerres Découvrez cet agréable appartement situé à Yerres, à proximité des commerces, des écoles et des lignes de bus. Situé au 1er étage sur 3 d’une résidence sécurisée construite en 2016, garantie normes BBC, il offre un cadre de vie calme, économique et fonctionnel. Avec ses 58 m² bien distribués, il se compose de : - Une entrée avec rangements, - Un séjour lumineux ouvrant sur un balcon avec une jolie vue sur la forêt, - Une cuisine ouverte et équipée, - Deux chambres confortables, chacune avec rangements, - Une salle de bains, - Un WC indépendant. L’ensemble propose des volumes agréables, pensés pour optimiser confort et praticité au quotidien. Deux places de parking boxables complètent ce bien, un véritable plus. En excellent état, l'appartement ne nécessite aucun travaux : il est prêt à vous accueillir. * Charges mensuelles incluant le chauffage collectif. >> Contactez-moi dès aujourd’hui pour organiser une visite ! *Vidéo disponible sur demande / Projection d’aménagement sur photos La presente annonce immobiliere vise 3 lots situés dans une copropriété de 100 lots au total et ne faisant l'objet d'aucune procédure en cours citée à l'article L. 721-1 du code de la construction et de l'habitation. Montant moyen mensuel de charges déclaré par le vendeur : 216€ par mois (soit 2592 € annuel). Honoraires d'agence à la charge du vendeur. Information d'affichage énergétique sur ce bien : classe ENERGIE C indice 94 et classe CLIMAT C indice 17. Les informations sur les risques auxquels ce bien est exposé, y compris l'obligation légale de débroussaillement, sont disponibles sur le site Géorisques : http://www.georisques.gouv.fr. La présente annonce immobilière a été rédigée sous la responsabilité éditoriale de Mme Karine Pereira mandataire indépendant en immobilier (sans détention de fonds), agent commercial de la SAS I@D France immatriculé au RSAC de Evry sous le numéro 984027987, titulaire de la carte de démarchage immobilier pour le compte de la société I@D France SAS.
Détails de l'annonce
Localisation
Ville
Yerres
Pays
FR
Diagnostics / Énergie
Diagnostic DPE
94
Diagnostic GES
17
Surfaces / Pièces / Composition
Nombre d’étages
3
Chauffage et diagnostics
Diagnostic de performance énergétique (DPE)
a
b
c
d
e
f
g
Indice d'émission de gaz à effet de serre (GES)
a
b
c
d
e
f
g
