Type
Bien immobilierTarif
117 000 €Chambres
2Salles de bain
0À VENDRE : Appartement T4 transformé en T3 - Résidence LE BELLECROIX
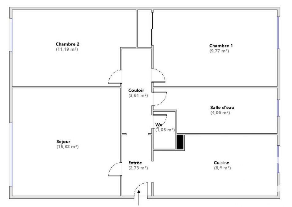
Venez découvrir cet appartement de type T4 transformé en T3, situé au 6? étage avec ascenseur dans la résidence LE BELLECROIX.
VISITE VIRTUELLE SUR DEMANDE PAR SMS, MAIL OU APPEL au O6 67 93 45 66.
Année de construction : 1961
COMPOSITION :
Pièce de vie de 28 m² donnant sur un balcon exposé sud-est.
Cuisine séparée et équipée.
2 chambres :
Une chambre de 12 m².
Une chambre de 9 m² avec placards.
Salle d'eau.
Toilettes séparées.
ÉQUIPEMENTS :
Chauffage collectif.
Doubles vitrages PVC.
Chauffe-eau électrique et sèche-serviette.
Cuisine équipée.
Balcon.
DIAGNOSTICS :
Superficie Loi Carrez totale : 67,27 m².
FINANCIER :
Taxe foncière : 980 €/an.
Prix : 117 000 € (frais d'agence inclus).
VOUS AVEZ UN PROJET ?
Estimation offerte, achat, vente, location : Nous sommes à votre service.
Cette annonce a été publiée par un agent commercial.
David O6 67 93 45 66
RSAC : 504 294 547
Venez découvrir cet appartement de type T4 transformé en T3, situé au 6? étage avec ascenseur dans la résidence LE BELLECROIX.
VISITE VIRTUELLE SUR DEMANDE PAR SMS, MAIL OU APPEL au O6 67 93 45 66.
Année de construction : 1961
COMPOSITION :
Pièce de vie de 28 m² donnant sur un balcon exposé sud-est.
Cuisine séparée et équipée.
2 chambres :
Une chambre de 12 m².
Une chambre de 9 m² avec placards.
Salle d'eau.
Toilettes séparées.
ÉQUIPEMENTS :
Chauffage collectif.
Doubles vitrages PVC.
Chauffe-eau électrique et sèche-serviette.
Cuisine équipée.
Balcon.
DIAGNOSTICS :
Superficie Loi Carrez totale : 67,27 m².
FINANCIER :
Taxe foncière : 980 €/an.
Prix : 117 000 € (frais d'agence inclus).
VOUS AVEZ UN PROJET ?
Estimation offerte, achat, vente, location : Nous sommes à votre service.
Cette annonce a été publiée par un agent commercial.
David O6 67 93 45 66
RSAC : 504 294 547
À proximité
Recherche des commodités à proximité...
Détails de l'annonce
Finances / Mandat / Références
Charges
€
Localisation
Ville
Saint-Martin-le-Vinoux
Pays
France
Surfaces / Pièces / Composition
Surface habitable
m²
Caractéristiques / Équipements
Ascenseur
Digicode
Interphone
Meublé
Diagnostics / Énergie
Diagnostic DPE
D
Diagnostic GES
D
Chauffage et diagnostics
Diagnostic de performance énergétique (DPE)
a
b
c
d
e
f
g
Indice d'émission de gaz à effet de serre (GES)
a
b
c
d
e
f
g
