Vente Maison de campagne 6 pièces
Type
Bien immobilierTarif
199 990 €Chambres
4Salles de bain
0Vente Maison de campagne 6 pièces
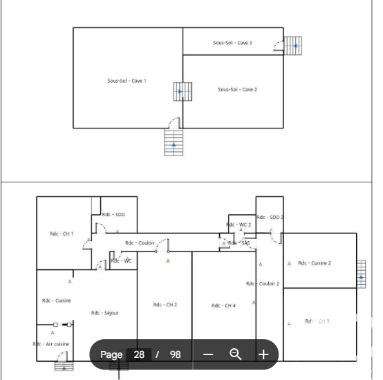
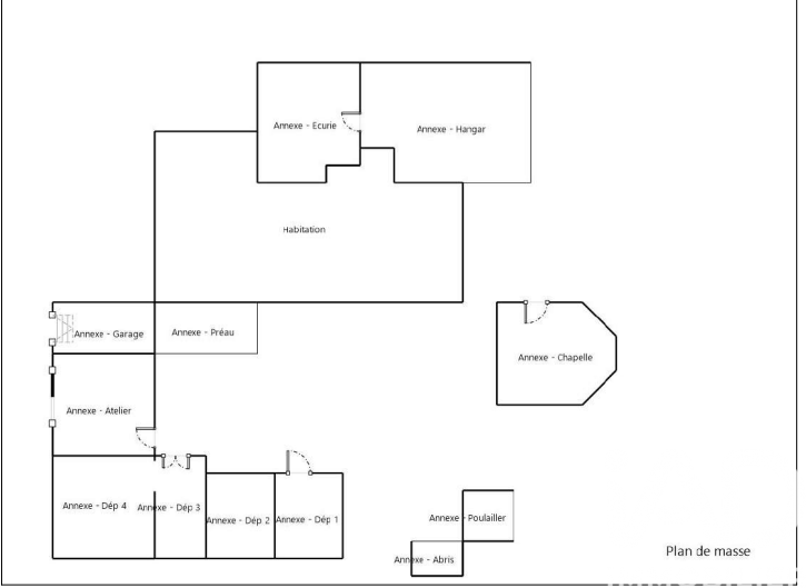
Iad France - Christelle Martineau vous propose : Maison de PLAIN-PIED à fort potentiel avec 4 chambres - garages - dépendances et Chapelle à Chalonnes-sur-Loire. Laissez-vous séduire par cette maison atypique située sur la Basse Ile de Chalonnes-sur-Loire, offrant un cadre de vie calme et authentique. Construite en 1949, cette maison de 131 m² habitable sur une parcelle de 1686 m², propose de beaux espaces à rénover, offrant ainsi la possibilité de laisser libre cours à votre créativité. Ce plain-pied propose : 2 cuisines, 1 arrière cuisine, 1 salle à manger lumineuse, 4 chambres spacieuses, 2 salles d'eau et 2 WC. En extérieur vous profiterez : - d'une chapelle (ancien prieuré ou vivait les moines au 11ème siècle) - de 2 garages - de 3 caves - d'une dépendances de près de 300 m² -d'un hangar -écurie -1 atelier Un grand jardin sans vis-à-vis, offrant un espace extérieur privilégié pour profiter du soleil. Situé également sur le parcours touristique de 'La Loire à vélo' Cette maison est idéale pour les bricoleurs et les amateurs de rénovation. Une visite s'impose pour découvrir tout le potentiel de cette charmante maison de campagne à Chalonnes-sur-Loire. Honoraires d'agence à la charge du vendeur. Information d'affichage énergétique sur ce bien : classe ENERGIE E indice 329 et classe CLIMAT C indice 11. Les informations sur les risques auxquels ce bien est exposé, y compris l'obligation légale de débroussaillement, sont disponibles sur le site Géorisques : http://www.georisques.gouv.fr. La présente annonce immobilière a été rédigée sous la responsabilité éditoriale de Mme Christelle Martineau mandataire indépendant en immobilier (sans détention de fonds), agent commercial de la SAS I@D France immatriculé au RSAC de ANGERS sous le numéro 990757528, titulaire de la carte de démarchage immobilier pour le compte de la société I@D France SAS.
Détails de l'annonce
Localisation
Ville
Chalonnes-sur-Loire
Pays
FR
Diagnostics / Énergie
Diagnostic DPE
329
Diagnostic GES
11
Chauffage et diagnostics
Diagnostic de performance énergétique (DPE)
a
b
c
d
e
f
g
Indice d'émission de gaz à effet de serre (GES)
a
b
c
d
e
f
g
