Dpt Pyrénées Orientales (66), à vendre SAINT PIERRE DELS FORCATS maison P9
Publié le 30 January 2026
Type
Bien immobilierTarif
475 000 €Chambres
5Salles de bain
1Dpt Pyrénées Orientales (66), à vendre SAINT PIERRE DELS FORCATS maison P9
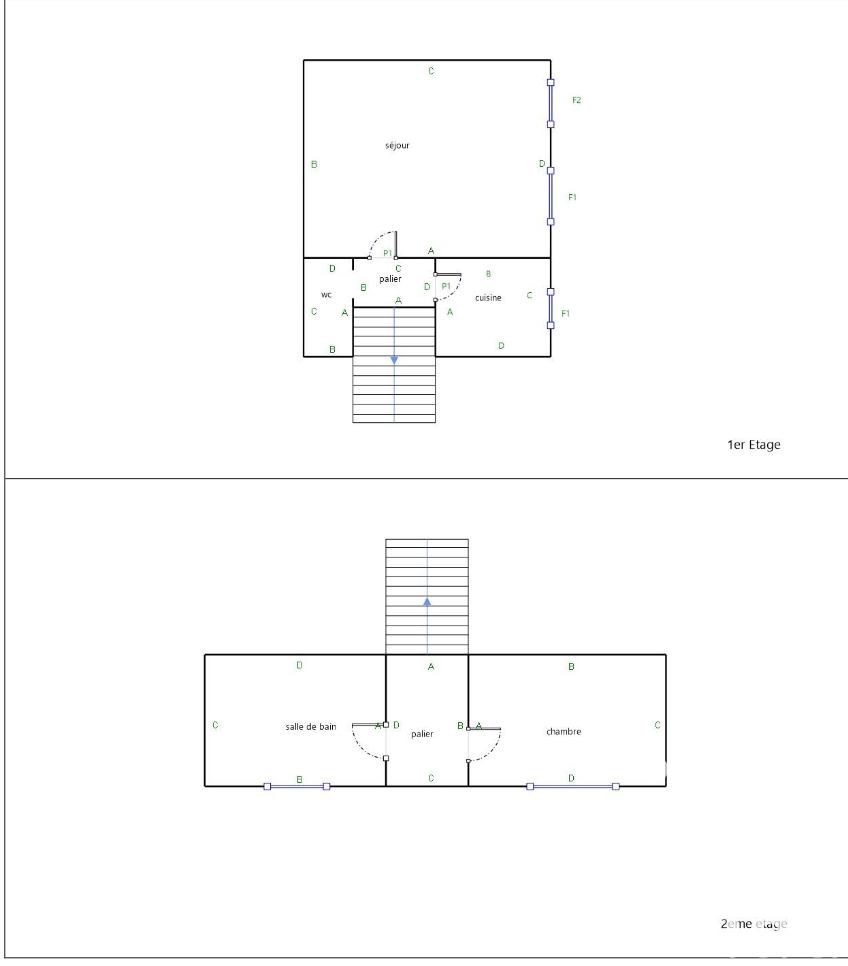
Situé à la station de ski de Saint-Pierre-dels-Forçats, découvrez ce beau chalet en rondins de 167 m² (145 m² loi Carrez).
Idéal en résidence secondaire comme principale vous apprécierez son agencement agréable, sa grande capacité d'accueil et ses belles prestations.
Il se compose au 1er étage d'un beau salon séjour avec cuisine ouverte donnant accès à une terrasse de 20 m² exposée sud-ouest, d'une chambre, d'une salle de bains et d'un WC.
Au 2ème, 2 belles chambres dont un dortoir, une salle d'eau avec WC et une mezzanine.
En rez-de-chaussée, un appartement indépendant de près de 55 m² avec salon séjour et cuisine ouverte, 2 chambres et une salle d'eau avec WC. Cet étage offre également un bel espace sauna et un coin buanderie.
L'ensemble des chalets du lotissement dispose d'une piscine couverte chauffée et d'un jacuzzi privatifs aux résidents de la copropriété.
N'hésitez pas à me contacter rapidement pour plus d'informations ou pour venir le visiter.
Visite digitale immersive 3D sur demande.
Nombre de lots de la copropriété : 10, Montant moyen annuel de la quote-part de charges (budget prévisionnel)(entretien piscine) : 1200€ soit 100€ par mois. Les honoraires sont à la charge du vendeur.
Les informations sur les risques auxquels ce bien est exposé sont disponibles sur le site Géorisques : www. georisques. gouv. fr.
Réseau Immobilier CAPIFRANCE - Votre agent commercial (RSAC N°830 430 179 - Greffe de PERPIGNAN) Elodie ARGENTAIS Entrepreneur Individuel à Responsabilité Limitée 06 10 18 78 81 - Réf.939087
Cette semaine
Cette annonce est récente
À proximité
Recherche des commodités à proximité...
Détails de l'annonce
Finances / Mandat / Références
Charges
€
Localisation
Ville
Saint Pierre Dels Forcats
Pays
France
Surfaces / Pièces / Composition
Surface habitable
165 m²
Caractéristiques / Équipements
Ascenseur
Digicode
Interphone
Diagnostics / Énergie
Diagnostic DPE
E
Diagnostic GES
B
Chauffage et diagnostics
Diagnostic de performance énergétique (DPE)
a
b
c
d
e
f
g
Indice d'émission de gaz à effet de serre (GES)
a
b
c
d
e
f
g
