À vendre : Appartement 3 pièces de 61 m² à Montpellier
Type
Bien immobilierTarif
165 000 €Chambres
2Salles de bain
0À vendre : Appartement 3 pièces de 61 m² à Montpellier
APPARTEMENT - RÉCENT - 3 PIÈCES - LOGGIA - PARKING - ZÉRO TRAVAUX - CITÉ PIERREVIVES
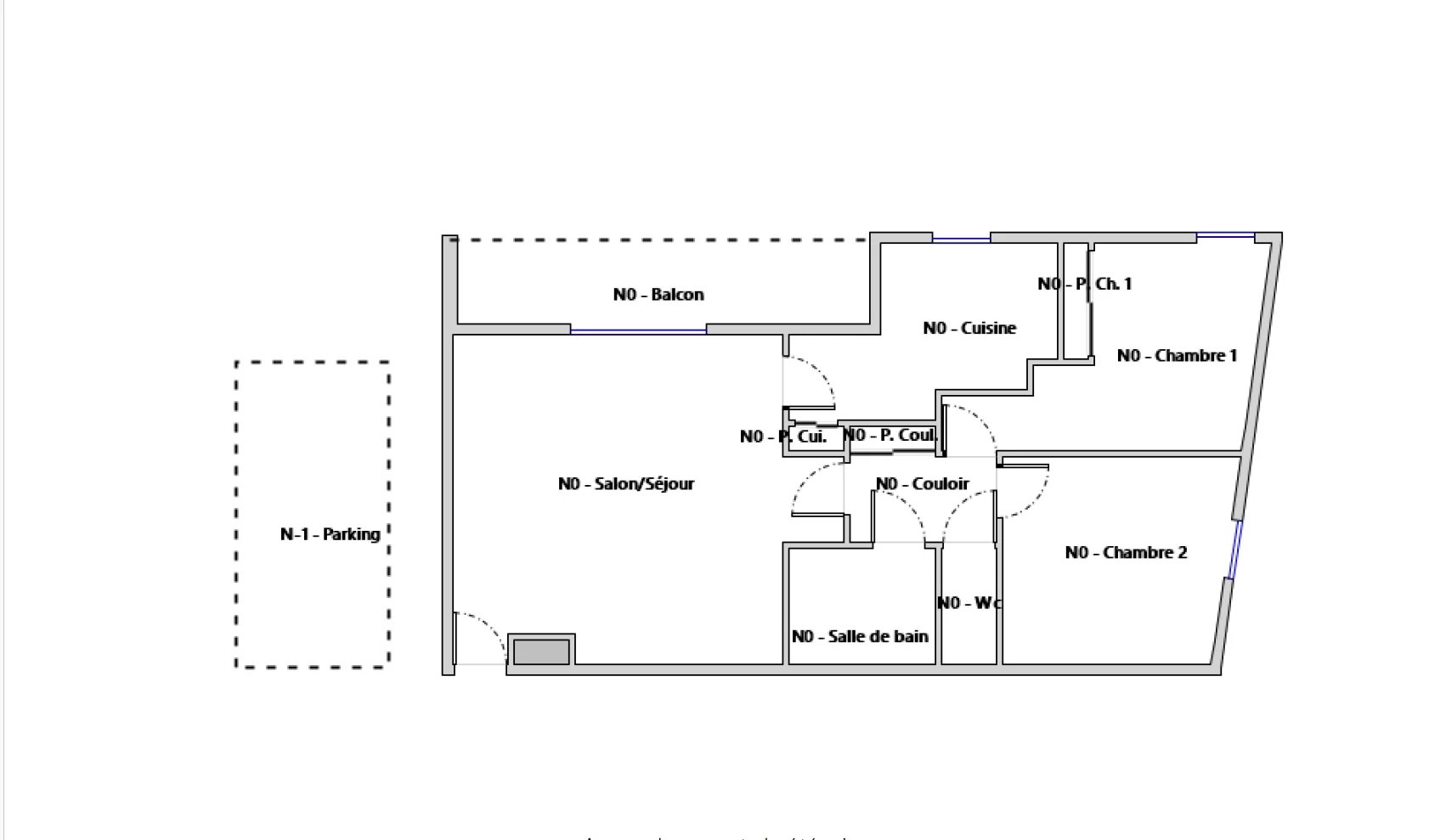
Situé dans le dynamique quartier Pierrevives – Cité du Savoir, à l’ouest de Montpellier, cet appartement 3 pièces de 61 m² vous séduira par son excellent état, sa luminosité et ses prestations modernes au sein d’une résidence récente et sécurisée.
L’appartement se compose de :
- Un séjour lumineux ouvrant sur une agréable loggia couverte, idéale pour profiter de l’extérieur en toute saison
- Une cuisine aménagée, équipée et fonctionnelle
- Deux grandes chambres avec rangements
- Une salle de bain contemporaine
- Un WC séparé pour plus de confort
- Une place de parking privative en sous-sol
Aucun travaux à prévoir. Vous n’avez plus qu’à poser vos valises !
Le quartier Pierrevives est en plein essor, au cœur d’un projet urbain moderne tourné vers le savoir, l’innovation et la culture. Vous y trouverez médiathèque, archives départementales, équipements sportifs, écoles et transports à proximité immédiate ainsi que des commerces.
Idéal pour un premier achat, un jeune couple ou un investissement locatif.
Pour découvrir cet appartement et ses atouts, contactez dès maintenant votre agent au 06/87/09/90/63 (7j/7) ou votre agence au O4/26/03/48/58. Laissez un message ou un SMS pour une réponse rapide ! RSAC : 951 760 040 (EI).
Appartement - Récent - 3 pièces - Loggia - Parking - Zéro travaux - Cité Pierresvives
Détails de l'annonce
Finances / Mandat / Références
Charges
€
Dépôt de garantie
€
Localisation
Ville
Montpellier
Pays
FR
Diagnostics / Énergie
Diagnostic DPE
79
Diagnostic GES
10
Chauffage / Énergie
Chauffage
Climatisation
Accès
Individuel
Énergie
Électrique
Type de chauffage
5
Énergie
3
Surfaces / Pièces / Composition
Surface (m²)
61 m²
Nombre de pièces
3
Nombre de chambres
2
Étage
2
Nombre d’étages
Caractéristiques / Équipements
Terrain viabilisé
Standing
5
Chauffage et diagnostics
Diagnostic de performance énergétique (DPE)
a
b
c
d
e
f
g
Indice d'émission de gaz à effet de serre (GES)
a
b
c
d
e
f
g
