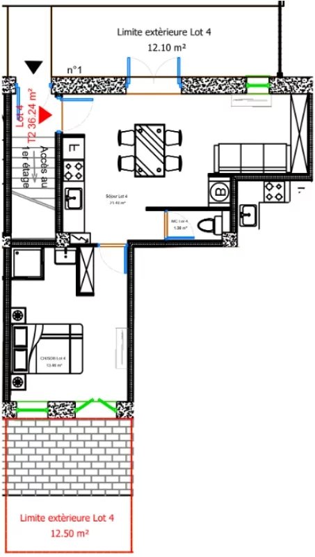
Francheville centre T2 36 m² avec jardin
Type
Bien immobilierTarif
160 000 €Chambres
1Salles de bain
0Francheville centre T2 36 m² avec jardin
Francheville le Haut centre, toutes commodités à pied. Ce T2 fait partie d'une petite copropriété en cours de réhabilitation. Séjour + cuisine, chambre, espace extérieur exposé sud. Livré avec les prestations suivantes : radiateurs électriques, cumulus, fenêtres double vitrage (DPE prochainement actualisé), couche d'apprêt sur les murs, façade ravalée. Reste à poser les sols et équiper la cuisine. Stationnement libre dans la copropriété.
Détails de l'annonce
Finances / Mandat / Références
Charges
€
Dépôt de garantie
€
Localisation
Ville
Francheville
Pays
FR
Diagnostics / Énergie
Diagnostic DPE
378
Diagnostic GES
80
Chauffage / Énergie
Chauffage
Radiateur
Accès
Individuel
Énergie
Électrique
Type de chauffage
3
Énergie
3
Surfaces / Pièces / Composition
Surface (m²)
36.24 m²
Nombre de pièces
2
Étage
Caractéristiques / Équipements
Terrain viabilisé
Chauffage et diagnostics
Diagnostic de performance énergétique (DPE)
a
b
c
d
e
f
g
Indice d'émission de gaz à effet de serre (GES)
a
b
c
d
e
f
g
