SAINT ETIENNE HAUTS DE JACQUARD PROCHE LIDL - APPARTEMENT T4 RENOVÉ 3 CHAMBRES CAVE ET GARAGE
Publié le 12 January 2026
Type
Bien immobilierTarif
114 900 €Chambres
3Salles de bain
0SAINT ETIENNE HAUTS DE JACQUARD PROCHE LIDL - APPARTEMENT T4 RENOVÉ 3 CHAMBRES CAVE ET GARAGE
EXCLUSIVITÉ LA MANUFACTURE DE L'IMMO
SECTEUR : HAUTS DE JACQUARD, PROCHE DU NOUVEAU LIDL ET DE LA PLACE JACQUARD
IDEAL FAMILLE - RETRAITES - INVESTISSEUR
APPARTEMENT DE TYPE F4 DE 73,60M2 CARREZ AVEC GARAGE ET CAVE.
AU 3EME ETAGE SUR 6 D'UNE RESIDENCE SECURISEE ET BIEN ENTRETENUE AVEC ASCENSEUR.
SECTEUR CALME ET RECHERCHE, A PROXIMITE DE LA PLACE JACQUARD ET DE SES COMMERCES, DU NOUVEAU LIDL, DE LA GARE DU CLAPIER ET A 10 MINUTES A PIEDS DE L'HYPER-CENTRE.
IDEALEMENT SITUE POUR UN INVESTISSEUR ET PROCHE DE L'ECOLE D'ARCHITECTURE POUR COLOCATION.
COMPOSE COMME SUIT :
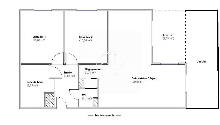
- ENTRÉE AVEC PLACARD (7,39m2).
- CUISINE INDEPENDANTE AMENAGÉE ET MODERNE (8,47m2)
- CELLIER BUANDERIE (1,74m2).
- SÉJOUR (14,86m2).
- TROIS CHAMBRES (14,22m2 + 10,32m2 +10,27m2).
-SALLE D'EAU (2,63m2).
-WC INDÉPENDANT AVEC LAVE MAIN (0,92m2).
-CAVE.
- GARAGE.
INFORMATIONS FINANCIERES ET PRESTATIONS :
CHAUFFAGE ET EAU CHAUDE COLLECTIF GAZ.
SIMPLE VITRAGE BOIS - VOLETS ROULANTS MANUELS.
DEVIS POUR INSTALLER LE DOUBLE VITRAGE ET LES VOLETS ROULANTS ELECTRIQUES MONTANT : 8 400€
CHARGES DE COPROPRIETE (2025) : 288€/mois (syndic, charges communes générales, chauffage, eau chaude, fonds de travaux, garage, cave...).
TAXE FONCIERE (2025) :1332€/an.
INTERPHONE - FIBRE OPTIQUE
ÉCLAIRAGE LED DANS LE SALON ET PLAFONNIER CONNECTÉ DANS UNE CHAMBRE
LOCAL POUBELLE ET VELOS AU RDC
COPROPRIETE :
Date de construction : 1973
Numéro des lots : 38 + 10 + 76
Nombre de lots : 46 lots.
Lots vendus représentants 427/10.00èmes des parties communes générales.
Procédure en cours : non.
CLASSE ENERGIE : D-145/ GES: D-31.
Estimation des coûts annuels d'énergie du logement : entre 870€ et 1220€/an.
REF/MGTVA0045
PRIX : 114.900€
HONORAIRES A LA CHARGE DU VENDEUR.
CONTACT :
Marion GILLET DE THOREY
Ei agent commercial en immobilier inscrite au RSAC du PUY EN VELAY sous le numéro 942 330 002
Téléphone : O7-6O-51-25-93
Mail : mariongilletdethorey.immo@gmail.com
CONSULTEZ L'ENSEMBLE DE NOS OFFRES ET TARIFS SUR : www.lamanufacturedelimmo.fr
Cette annonce vous est proposée par GILLET DE THOREY Marion - EI - NoRSAC: , Enregistré au Greffe du tribunal de commerce de SAINT ETIENNE VOUS AVEZ UN PROJET IMMOBILIER (achat, vente, gestion, location, expertise, estimation...) ?CONSULTEZ NOS ANNONCES, SERVICES ET TARIFS SUR : www.lamanufacturedelimmo.frCONTACTEZ NOUS AU : 04 77 190 190
SECTEUR : HAUTS DE JACQUARD, PROCHE DU NOUVEAU LIDL ET DE LA PLACE JACQUARD
IDEAL FAMILLE - RETRAITES - INVESTISSEUR
APPARTEMENT DE TYPE F4 DE 73,60M2 CARREZ AVEC GARAGE ET CAVE.
AU 3EME ETAGE SUR 6 D'UNE RESIDENCE SECURISEE ET BIEN ENTRETENUE AVEC ASCENSEUR.
SECTEUR CALME ET RECHERCHE, A PROXIMITE DE LA PLACE JACQUARD ET DE SES COMMERCES, DU NOUVEAU LIDL, DE LA GARE DU CLAPIER ET A 10 MINUTES A PIEDS DE L'HYPER-CENTRE.
IDEALEMENT SITUE POUR UN INVESTISSEUR ET PROCHE DE L'ECOLE D'ARCHITECTURE POUR COLOCATION.
COMPOSE COMME SUIT :
- ENTRÉE AVEC PLACARD (7,39m2).
- CUISINE INDEPENDANTE AMENAGÉE ET MODERNE (8,47m2)
- CELLIER BUANDERIE (1,74m2).
- SÉJOUR (14,86m2).
- TROIS CHAMBRES (14,22m2 + 10,32m2 +10,27m2).
-SALLE D'EAU (2,63m2).
-WC INDÉPENDANT AVEC LAVE MAIN (0,92m2).
-CAVE.
- GARAGE.
INFORMATIONS FINANCIERES ET PRESTATIONS :
CHAUFFAGE ET EAU CHAUDE COLLECTIF GAZ.
SIMPLE VITRAGE BOIS - VOLETS ROULANTS MANUELS.
DEVIS POUR INSTALLER LE DOUBLE VITRAGE ET LES VOLETS ROULANTS ELECTRIQUES MONTANT : 8 400€
CHARGES DE COPROPRIETE (2025) : 288€/mois (syndic, charges communes générales, chauffage, eau chaude, fonds de travaux, garage, cave...).
TAXE FONCIERE (2025) :1332€/an.
INTERPHONE - FIBRE OPTIQUE
ÉCLAIRAGE LED DANS LE SALON ET PLAFONNIER CONNECTÉ DANS UNE CHAMBRE
LOCAL POUBELLE ET VELOS AU RDC
COPROPRIETE :
Date de construction : 1973
Numéro des lots : 38 + 10 + 76
Nombre de lots : 46 lots.
Lots vendus représentants 427/10.00èmes des parties communes générales.
Procédure en cours : non.
CLASSE ENERGIE : D-145/ GES: D-31.
Estimation des coûts annuels d'énergie du logement : entre 870€ et 1220€/an.
REF/MGTVA0045
PRIX : 114.900€
HONORAIRES A LA CHARGE DU VENDEUR.
CONTACT :
Marion GILLET DE THOREY
Ei agent commercial en immobilier inscrite au RSAC du PUY EN VELAY sous le numéro 942 330 002
Téléphone : O7-6O-51-25-93
Mail : mariongilletdethorey.immo@gmail.com
CONSULTEZ L'ENSEMBLE DE NOS OFFRES ET TARIFS SUR : www.lamanufacturedelimmo.fr
Cette annonce vous est proposée par GILLET DE THOREY Marion - EI - NoRSAC: , Enregistré au Greffe du tribunal de commerce de SAINT ETIENNE VOUS AVEZ UN PROJET IMMOBILIER (achat, vente, gestion, location, expertise, estimation...) ?CONSULTEZ NOS ANNONCES, SERVICES ET TARIFS SUR : www.lamanufacturedelimmo.frCONTACTEZ NOUS AU : 04 77 190 190
À proximité
Recherche des commodités à proximité...
Détails de l'annonce
Finances / Mandat / Références
Honoraires
8900 €
Localisation
Ville
St etienne
Pays
France
Diagnostics / Énergie
Diagnostic DPE
C
Diagnostic GES
D
Bilan consommation énergie (classe)
145
Bilan émissions GES (classe)
31
Surfaces / Pièces / Composition
Surface (m²)
73.6 m²
Surface séjour (m²)
14.86
Nombre de chambres
3
Nombre de balcons
Caractéristiques / Équipements
Meublé
Terrasse
Piscine
Orientations
Orientation (simple)
NORD-SUD
Cuisine
Type de cuisine
Separee -Equipee
Chauffage / Énergie
Type de chauffage
RADIATEUR
Chauffage et diagnostics
Diagnostic de performance énergétique (DPE)
a
b
c
d
e
f
g
Indice d'émission de gaz à effet de serre (GES)
a
b
c
d
e
f
g
