Appartement à vendre Rountzenheim-Auenheim
Type
Bien immobilierTarif
150 000 €Chambres
1Salles de bain
0Appartement à vendre Rountzenheim-Auenheim
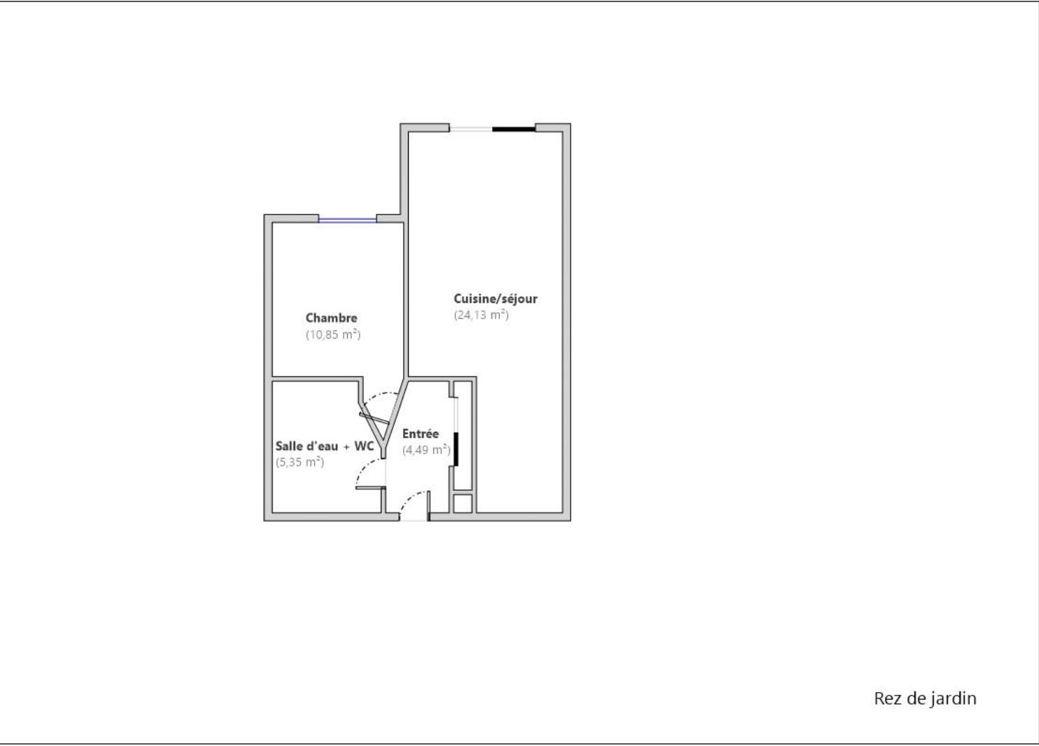
À Rountzenheim, dans un environnement calme et résidentiel, découvrez ce charmant appartement de 44,82 m² habitables situé en rez-de-jardin, idéal pour un premier achat ou un investissement locatif.
? Composition du bien :
L'appartement se compose d'une entrée avec placards intégrés, d'une chambre lumineuse, d'une salle de bains avec WC, et d'une agréable pièce de vie ouverte comprenant un salon, un espace repas et une cuisine équipée.
Depuis le séjour, vous accédez à une terrasse et un petit jardin privatif, parfaits pour profiter des beaux jours ou recevoir vos proches dans un cadre verdoyant.
? Stationnement et annexes :
Un garage fermé ainsi qu'une place de parking privative complètent le bien.
? Confort et équipements :
Chauffage au sol électrique, complété par un radiateur d'appoint dans la chambre,
Double vitrage PVC,
? Points forts :
Emplacement recherché, à proximité de la gare et des axes principaux (accès rapide vers Haguenau, Lauterbourg et Strasbourg),
Extérieur privatif rare pour ce type de bien,
Idéal investisseur (forte demande locative dans le secteur) ou résidence principale pour une personne seule ou un jeune couple.
Montant moyen annuel de la quote-part de charges courantes: 834,22
Nombre de lots : 39 (dont 18 lots d'habitation)
Aucune procédure en cours menée sur le fondement des articles 29-1 A et 29-1 de la loi n° 65-557 du 10 juillet 1965 et de l'article L.615-6 du CCH.
Honoraires à la charge du vendeur. Dans une copropriété de 39 lots. Aucune procédure n'est en cours. Classe énergie D, Classe climat B Montant estimé des dépenses annuelles d'énergie pour un usage standard : entre 830.00 et 1190.00 sur les années 2021, 2022 et 2023 (abonnements compris). Les informations sur les risques auxquels ce bien est exposé sont disponibles sur le site Géorisques : georisques.gouv.fr.
Votre conseiller JUND IMMOBILIER : Co-Gérant - Alexis JUND
Carte T CPI67012024000000048
RCP 733300480001
? Composition du bien :
L'appartement se compose d'une entrée avec placards intégrés, d'une chambre lumineuse, d'une salle de bains avec WC, et d'une agréable pièce de vie ouverte comprenant un salon, un espace repas et une cuisine équipée.
Depuis le séjour, vous accédez à une terrasse et un petit jardin privatif, parfaits pour profiter des beaux jours ou recevoir vos proches dans un cadre verdoyant.
? Stationnement et annexes :
Un garage fermé ainsi qu'une place de parking privative complètent le bien.
? Confort et équipements :
Chauffage au sol électrique, complété par un radiateur d'appoint dans la chambre,
Double vitrage PVC,
? Points forts :
Emplacement recherché, à proximité de la gare et des axes principaux (accès rapide vers Haguenau, Lauterbourg et Strasbourg),
Extérieur privatif rare pour ce type de bien,
Idéal investisseur (forte demande locative dans le secteur) ou résidence principale pour une personne seule ou un jeune couple.
Montant moyen annuel de la quote-part de charges courantes: 834,22
Nombre de lots : 39 (dont 18 lots d'habitation)
Aucune procédure en cours menée sur le fondement des articles 29-1 A et 29-1 de la loi n° 65-557 du 10 juillet 1965 et de l'article L.615-6 du CCH.
Honoraires à la charge du vendeur. Dans une copropriété de 39 lots. Aucune procédure n'est en cours. Classe énergie D, Classe climat B Montant estimé des dépenses annuelles d'énergie pour un usage standard : entre 830.00 et 1190.00 sur les années 2021, 2022 et 2023 (abonnements compris). Les informations sur les risques auxquels ce bien est exposé sont disponibles sur le site Géorisques : georisques.gouv.fr.
Votre conseiller JUND IMMOBILIER : Co-Gérant - Alexis JUND
Carte T CPI67012024000000048
RCP 733300480001
Détails de l'annonce
Caractéristiques / Équipements
Cave
Oui
Terrasse
Oui
Mandat exclusif
Oui
Localisation
Ville
Rountzenheim-Auenheim
Pays
France
Diagnostics / Énergie
Diagnostic DPE
D
Diagnostic GES
B
Finances / Mandat / Références
Honoraires vendeur
€
Charges mensuelles
50.00 €
Numéro de mandat
27
Type de mandat
25/09/2025
Chauffage et diagnostics
Diagnostic de performance énergétique (DPE)
a
b
c
d
e
f
g
Indice d'émission de gaz à effet de serre (GES)
a
b
c
d
e
f
g
