SUBLIME AUTHENTIQUE CHATEAU TOTALEMENT RENOVE AU COEUR DU PAYS CATHARE, PISCINE, VUE CHATEAU
Publié le 15 March 2026
Type
Bien immobilierTarif
649 000 €Chambres
6Salles de bain
2SUBLIME AUTHENTIQUE CHATEAU TOTALEMENT RENOVE AU COEUR DU PAYS CATHARE, PISCINE, VUE CHATEAU
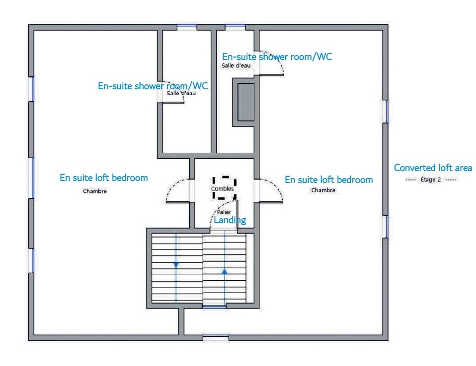
EXCLUSIVITE SEXTANT FRANCE ARNAUD MASIP a l'immense privilège de vous proposer à la vente cette somptueuse demeure nommée "le petit Château", au charme envoûtant et à l'architecture sublime. Laissez-vous transporter au sein des 294 m² habitables de cette belle demeure édifiée sur une parcelle de 1 745 m², dont 1385 m² sont directement utilisables. De configuration 4 faces, en RDC + 2 étages, venez profiter de ce lieu imposant et majestueux où le temps semble s'être arrêté afin de mieux le savourer...! A disposition, trois niveaux totalement rénovés avec soin, carrelages et parquets d'époque, hauts plafonds, ferme apparente les extérieurs qui ne sont pas en reste, vous offriront diverses terrasses, joli jardin d'agrément avant et arrière, enfin une somptueuse piscine chauffée en dur de 12 X 5 mètres...Un bien tout simplement magnifique, versatile et insolite, s'accordant à merveille pour de multiples et divers projets d'accueil ou familiaux, résolument un MUST...! Nichée sur le piémont Pyrénéen à 399m d'altitude, cette demeure d'exception séduit par son architecture raffinée et son cadre enchanteur elle allie charme intemporel et confort moderne dans un environnement préservé. Dès votre arrivée, vous serez fasciné par son style romantique-bourgeois typé "Belle époque", agrémenté d'un jardin paysagé et sa vaste piscine, ses escaliers en fer à cheval accédant à la pièce jardin d'hiver, composée de baies vitrées en arc et leurs vitrages colorés. A suivre, un sublime hall d'entrée lové entre ses deux salons à l'ambiance chic, leurs portes-fenêtres, cheminées en marbre et carrelages mosaïques du plus bel effet. Une salle d'eau avec douche et sanitaires pour le côté pratique, une grande pièce dinatoire et sa cuisine ouverte totalement équipée, accédant directement sur la terrasse arrière et son jardinet, l'idéal afin de profiter de délicieux moments en toute intimité. Au premier étage, 4 chambres de type suite avec salle d'eau et sanitaires, offrant chacune une personnalité bien distincte tout en respectant le code stylistique bien marqué des lieux. Deux des chambres étant liées par un superbe balcon-terrasse offrent une vue sur le jardin avant, mais surtout, sur le magnifique Château de Puilaurens, forteresse Royale du 13è siècle. Pour compléter ce véritable tableau de Maître, le dernier étage sous toiture vous propose 2 grandes pièces de type studio, coin kitchenette, pièce d'eau et sanitaires, parquets bois massif, charpente apparente, fenêtres rondes, mansardées un espace unique et idéal comme lieu de repos, ou tout autre projet, il ne vous reste plus qu'à choisir. Un bien pour amoureux et amateurs de belles uvres, recherchant une habitation au style affirmé et au cachet intemporel entre mer et montagne. Assainissement collectif - Chauffage central au fioul - Climatisations réversibles sauf sous-toiture - Menuiseries en bois simple vitrage - Electricité et plomberie totalement neuves - Couverture de toiture refaite entièrement en 2011 - Le niveau situé en rez-de-chaussée offre diverses pièces de stockage, le local technique pour la piscine - Taxe foncière 3 765 - DPE : D - GES : D. MOBILIER NON INCLUS LAPRADELLE-PUILAURENS, au cur du Pays Cathare et à environ une heure des premières stations Pyrénéennes ainsi que la Méditerranée et ses stations balnéaires. L'endroit idéal pour s'adonner aux activités de pleine air: randonnée, vélo, escalade, sports d'eaux vives - pour amoureux de la nature. Présence d'un joli restaurant, un commerce multi services, bureau de poste, école primaire, à 5 min de Axat et toutes les commodités de première nécessité. A 45 min de l'aéroport de Perpignan, 1 H de Carcassonne, moins de 2H de Toulouse et Gérone. HONORAIRES D'AGENCE A LA CHARGE DU VENDEUR. Les informations sur les risques auxquels ce bien est exposé sont disponibles sur le site Géorisques: www.georisques.gouv.fr
Cette semaine
Cette annonce est récente
À proximité
Recherche des commodités à proximité...
Détails de l'annonce
Localisation
Ville
LAPRADELLE
Pays
France
Surfaces / Pièces / Composition
Surface du terrain
1745 m²
Chauffage / Énergie
Nature de chauffage
Non renseigné
Chauffage et diagnostics
Diagnostic de performance énergétique (DPE)
a
b
c
d
e
f
g
Indice d'émission de gaz à effet de serre (GES)
a
b
c
d
e
f
g
