Un appartement avec terrasse dans une villa historique à Barbizon
Publié le 16 March 2026
Type
Bien immobilierTarif
930 000 €Chambres
3Salles de bain
0Un appartement avec terrasse dans une villa historique à Barbizon
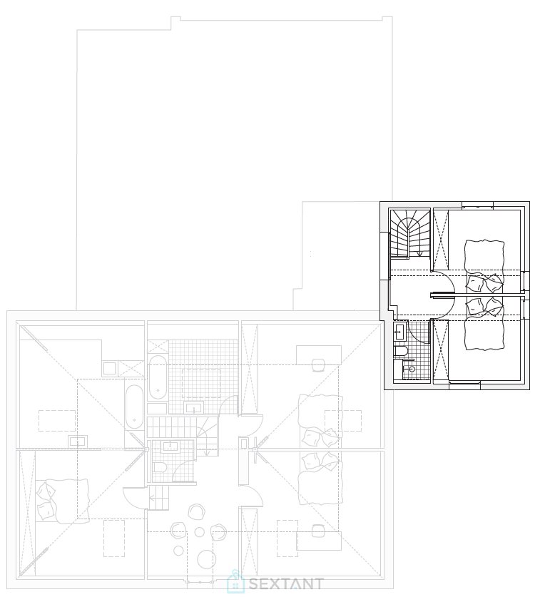
Ce duplex fait partie du projet de réhabilitation contemporaine d'une villa historique des années 1920 par l'agence d'architecture Ciguë, qui prévoit la division de l'édifice en quatre appartements d'exception au sein d'un cadre exceptionnel en lisière de la forêt de Fontainebleau, dans le village de Barbizon. Aux 1er et 2e étages de la villa, il déploie une surface de 118 m²sur deux niveaux et dispose d'une terrasse privative d'environ 43 m². L'espace de vie occupe la majeure partie du premier niveau et comprend un séjour salle à manger avec cheminée et une cuisine donnant accès à une terrasse qui surplombe la forêt. Une chambre avec salle d'eau et WC séparé vient compléter ce niveau. Le deuxième niveau abrite 2 autres chambres ainsi qu'une salle de bain. Au sous-sol, des caves ainsi que des espaces de stockage privés sont à disposition des habitants. Ils profiteront également des équipements exceptionnels du projet « La Lisière » voisin, comme une piscine écologique et des potagers partagés, ainsi qu'un accès libre et direct à la forêt de Fontainebleau. La propriété profite d'un environnement naturel préservé et d'une localisation exceptionnelle en lisière de la forêt de Fontainebleau, dans le village de Barbizon, haut lieu de l'histoire artistique française.. Accessible par une grande allée bordée de platanes, la villa profite de toutes les commodités de proximité du village : commerces, école, pharmacie, médecin, poste, loisirs sont à 15 minutes à pied, 5 minutes en vélo ou 4 minutes en voiture. Paris est accessible à moins de 50 minutes en voiture ou en train. Sextant France - 06 83 91 16 81 - Plus d'informations sur www.sextantfrance.fr réf. 27266
Cette semaine
Cette annonce est récente
À proximité
Recherche des commodités à proximité...
Détails de l'annonce
Localisation
Ville
BARBIZON
Pays
France
Surfaces / Pièces / Composition
Surface du terrain
m²
Chauffage / Énergie
Nature de chauffage
Non renseigné
Chauffage et diagnostics
Diagnostic de performance énergétique (DPE)
a
b
c
d
e
f
g
Indice d'émission de gaz à effet de serre (GES)
a
b
c
d
e
f
g
