Un appartement avec terrasse dans une villa historique à Barbizon
Publié le 16 March 2026
Type
Bien immobilierTarif
990 000 €Chambres
3Salles de bain
0Un appartement avec terrasse dans une villa historique à Barbizon
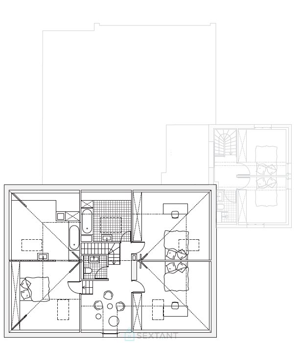
Un appartement avec terrasse dans une villa historique à Barbizon. Ce duplex fait partie du projet de réhabilitation contemporaine d'une villa historique des années 1920 par l'agence d'architecture Ciguë, qui prévoit la division de l'édifice en quatre appartements d'exception au sein d'un cadre exceptionnel en lisière de la forêt de Fontainebleau, dans le village de Barbizon. Aux 1er et 2e étages de la villa, cet appartement déploie une surface de 127 m² et profite de 57 m² d'espaces extérieurs répartis sur 3 balcons et une grande terrasse. L'espace de vie occupe la majeure partie du premier niveau et comprend un séjour salle à manger et une cuisine ouverte avec îlot central, donnant accès à une terrasse qui surplombe la forêt. L'étage se compose d'une grande suite avec WC séparés et salle de bain ainsi que 2 autres chambres avec salle de bain. Une bibliothèque vient compléter ce niveau. Au sous-sol, des caves ainsi que des espaces de stockage privés sont à disposition des habitants. Ils profiteront également des équipements exceptionnels du projet « La Lisière » voisin, comme une piscine écologique et des potagers partagés, ainsi qu'un accès direct à la forêt de Fontainebleau. La propriété profite d'un environnement naturel préservé et d'une localisation exceptionnelle en lisière de la forêt de Fontainebleau, dans le village de Barbizon, haut lieu de l'histoire artistique française.. Accessible par une grande allée bordée de platanes, la villa profite de toutes les commodités de proximité du village : commerces, école, pharmacie, médecin, poste, loisirs sont à 15 minutes à pied, 5 minutes en vélo ou 4 minutes en voiture. Paris est accessible à moins de 50 minutes en voiture ou en train. Sextant France - 06 83 91 16 81 - Plus d'informations sur www.sextantfrance.fr réf. 27266
Cette semaine
Cette annonce est récente
À proximité
Recherche des commodités à proximité...
Détails de l'annonce
Localisation
Ville
BARBIZON
Pays
France
Surfaces / Pièces / Composition
Surface du terrain
m²
Chauffage / Énergie
Nature de chauffage
Non renseigné
Chauffage et diagnostics
Diagnostic de performance énergétique (DPE)
a
b
c
d
e
f
g
Indice d'émission de gaz à effet de serre (GES)
a
b
c
d
e
f
g
