Le Cannet 83m2 - Résidence de standing avec piscine, tennis et vue mer
Publié le 22 February 2026
Type
Bien immobilierTarif
620 000 €Chambres
2Salles de bain
1Le Cannet 83m2 - Résidence de standing avec piscine, tennis et vue mer
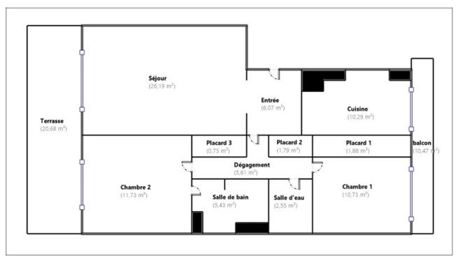
Le Cannet Résidence de standing avec piscine, tennis et vue mer À quelques pas du village du Cannet, au sein d'une résidence calme, sécurisée et recherchée, découvrez ce bel appartement T3 de 83 m², situé au 5ème étage. La résidence offre un cadre de vie privilégié avec parc arboré, piscine, courts de tennis et gardiens, alliant confort, sécurité et sérénité au quotidien. L'appartement se compose de : une entrée, une cuisine indépendante, un grand séjour lumineux, deux chambres, une salle de bain, une salle d'eau. L'ensemble s'ouvre sur une spacieuse terrasse bénéficiant d'une vue dégagée sur le parc et la mer, idéale pour profiter pleinement du calme et de la douceur de vivre. A l'arière, un balcon dessert la cuisine et la seconde chambre. Ce bien est complété par : un emplacement de stationnement couvert, une cave. Un appartement rare offrant un cadre de vie verdoyant, à proximité immédiate des commodités et du charme du vieux Cannet. Honoraires à la charge du vendeur Agent commercial Honoraires à la charge du vendeur Agent commercial Sextant France - Corentine Seiss agent basé à CANNES - 06 23 35 28 03 - Plus d'informations sur www.sextantfrance.fr réf. 27090
Ce mois
Cette annonce est récente
À proximité
Recherche des commodités à proximité...
Détails de l'annonce
Localisation
Ville
LE CANNET
Pays
France
Surfaces / Pièces / Composition
Surface du terrain
m²
Chauffage / Énergie
Nature de chauffage
Non renseigné
Chauffage et diagnostics
Diagnostic de performance énergétique (DPE)
a
b
c
d
e
f
g
Indice d'émission de gaz à effet de serre (GES)
a
b
c
d
e
f
g
