Type
Bien immobilierTarif
590 000 €Chambres
0Salles de bain
0Vente Immeuble 76 m²
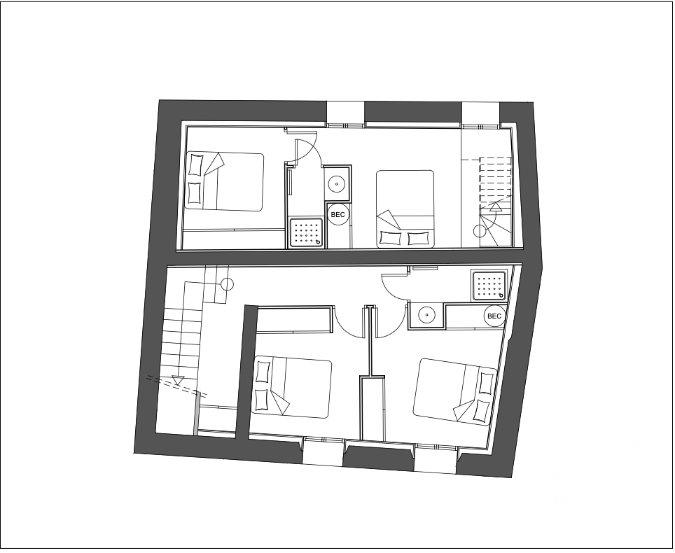
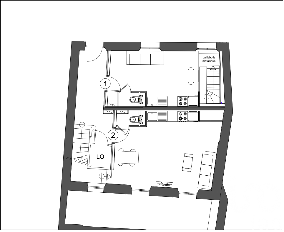
Iad France - Benoit Tordo vous propose : CANNES – LE SUQUET – IMMEUBLE RÉNOVÉ / STYLE PETIT HÔTEL DE TOURISME Cannes, Proche rue du PRE, au cOEur du quartier historique du Suquet, découvrez ce petit immeuble, entièrement rénové avec des matériaux haut de gamme. Il se compose de 4 appartements indépendants, meublés et entièrement équipés, alliant charme authentique et confort moderne. L’immeuble fonctionne aujourd’hui comme un petit hôtel de tourisme, accueillant une clientèle Airbnb, avec un chiffre d’affaires compris en 60 000 et 85 000 €. Emplacement idéal, à deux pas des plages, du port et du Palais des Festivals Un bien idéal pour un investissement locatif, la création d’une petite foncière ou un projet hôtelier clé en main au cOEur du centre historique de Cannes. Dossier et RDV visite sur demande – Merci Honoraires d'agence à la charge du vendeur. Information d'affichage énergétique sur ce bien : classe ENERGIE D indice 258 et classe CLIMAT B indice 10. Les informations sur les risques auxquels ce bien est exposé, y compris l'obligation légale de débroussaillement, sont disponibles sur le site Géorisques : http://www.georisques.gouv.fr. La présente annonce immobilière a été rédigée sous la responsabilité éditoriale de M Benoit Tordo mandataire indépendant en immobilier (sans détention de fonds), agent commercial de la SAS I@D France immatriculé au RSAC de NICE sous le numéro 510521263, titulaire de la carte de démarchage immobilier pour le compte de la société I@D France SAS.
À proximité
Recherche des commodités à proximité...
Détails de l'annonce
Localisation
Ville
Cannes
Pays
FR
Diagnostics / Énergie
Diagnostic DPE
258
Diagnostic GES
10
Surfaces / Pièces / Composition
Nombre d’étages
3
Chauffage et diagnostics
Diagnostic de performance énergétique (DPE)
a
b
c
d
e
f
g
Indice d'émission de gaz à effet de serre (GES)
a
b
c
d
e
f
g
