Type
Bien immobilierTarif
2 499 000 €Chambres
4Salles de bain
0Vente Appartement 5 pièces
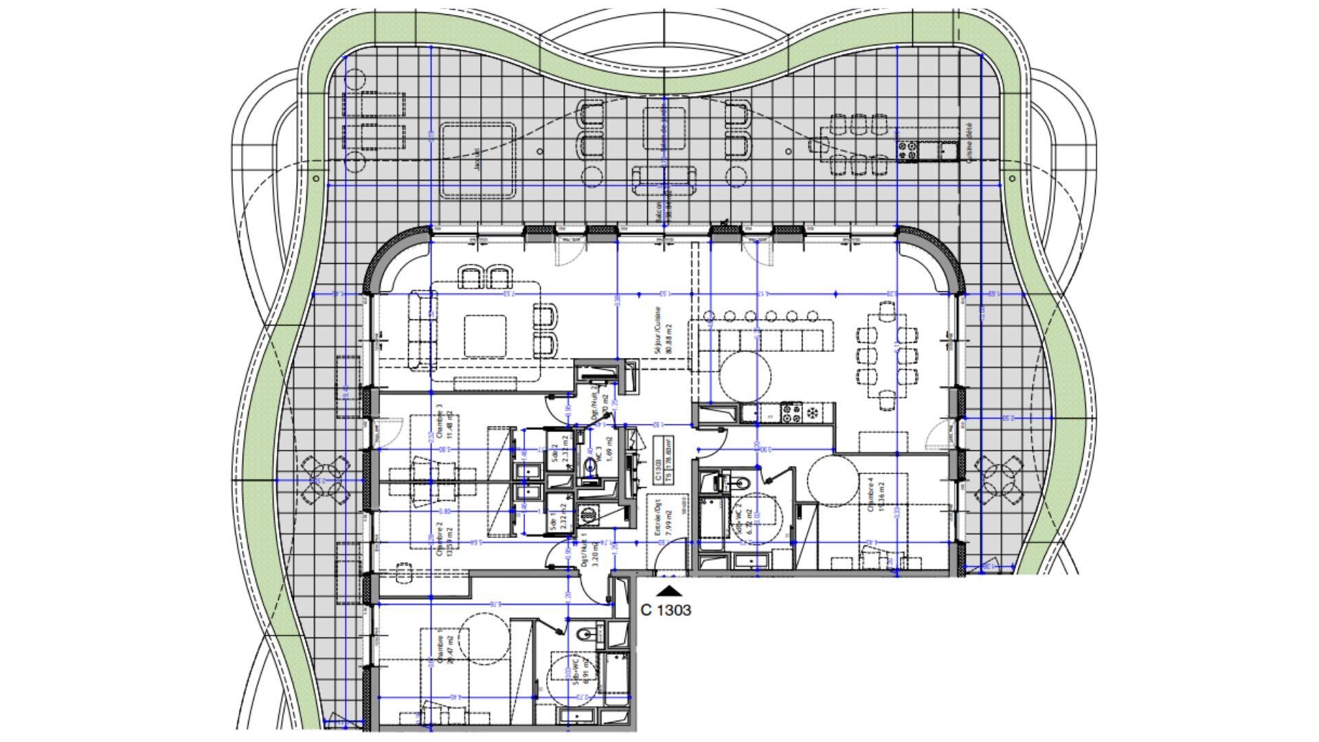
Iad France - Sarah Rozière (06 99 86 19 42) vous propose : Appartement T5 avec terrasse à Aix-les-Bains. Venez découvrir ce T5 d’exception niché au 13 ème étage des Nouveaux Thermes, un lieu chargé d'histoire, d’élégance et de renouveau. Ce 5 pièces de 179 m² environ offre un immense séjour-cuisine lumineux de 81 m² environ, prolongé par une grande terrasse de 139 m² environ. Il se compose de quatre chambres confortables, deux salles de bains et deux salles d'eau modernes, et se complète par deux box privatifs. Une architecture d’avant-garde. Un art de vivre incomparable. Sur la prestigieuse Place Maurice Mollard, cOEur historique d’Aix-les-Bains, découvrez une adresse qui ne ressemble à aucune autre : Les Nouveaux Thermes, renaissance contemporaine d’un site thermal majeur de la ville. Ici, l’histoire millénaire des eaux aixoises s’unit à la créativité du visionnaire Vincent Callebaut, architecte internationalement reconnu pour son architecture biomimétique, poétique et profondément écologique. La signature d’un architecte de renommée mondiale : Imaginées par Vincent Callebaut Architectures, les nouvelles résidences émergent avec légèreté du socle thermal historique : deux silhouettes sculpturales, ondulantes, habillées de végétation et baignées de lumière naturelle. Architecte belge de stature internationale, Vincent Callebaut est reconnu pour son approche pionnière mêlant nature, technologie et durabilité. Ses projets s’inspirent du vivant : courbes organiques, façades végétalisées, matériaux durables, symbiose entre architecture et biodiversité. Une OEuvre à la croisée du passé et du futur : Les appartements s’ouvrent sur de vastes terrasses végétalisées, véritables respirations suspendues face au lac du Bourget, au Revard et à la Dent du Chat. Les intérieurs, magnifiés par de grandes baies vitrées, offrent une qualité de lumière exceptionnelle et cette sensation rare d’habiter à la fois la ville, la nature et le paysage. Une résidence durable et innovante : - Chauffage et rafraîchissement par géothermie, puisant directement son énergie dans la source historique d’Aix-les-Bains. - Conception répondant aux normes environnementales les plus exigeantes. - Façades végétalisées entretenues par des jardiniers professionnels. - Parties communes sublimées par le réemploi des vitraux sérigraphiés patrimoniaux. - Architecture pensée pour réduire l’empreinte carbone et augmenter le confort thermique. Depuis la Place Maurice Mollard, vous profitez d’un accès immédiat à la vie aixoise : commerces, gastronomie, culture, gare, animations, parcs et activités thermales. Un emplacement exceptionnel où se conjuguent patrimoine, nature, élégance et modernité. N’hésitez pas à me contacter pour plus d’informations ou pour un accompagnement sur mesure. Honoraires d’agence à la charge du vendeur. Bien non soumis au DPE. Les informations sur les risques auxquels ce bien est exposé sont disponibles sur le site Géorisques : www.georisques.gouv.fr. La présente annonce immobilière a été rédigée sous la responsabilité éditoriale de Mlle Sarah Rozière EI (ID 83696), mandataire indépendant en immobilier (sans détention de fonds), agent commercial de la SAS I@D France immatriculé au RSAC de Clermont-Ferrand sous le numéro 978616993, titulaire de la carte de démarchage immobilier pour le compte de la société I@D France SAS. Retrouvez tous nos biens sur notre site internet. www.iadfrance.fr.
À proximité
Recherche des commodités à proximité...
Détails de l'annonce
Localisation
Ville
Aix-les-Bains
Pays
FR
Surfaces / Pièces / Composition
Nombre d’étages
13
Étage
13
Chauffage et diagnostics
Diagnostic de performance énergétique (DPE)
a
b
c
d
e
f
g
Indice d'émission de gaz à effet de serre (GES)
a
b
c
d
e
f
g
