Type
Bien immobilierTarif
269 000 €Chambres
3Salles de bain
0Vente Maison traditionnelle 4 pièces
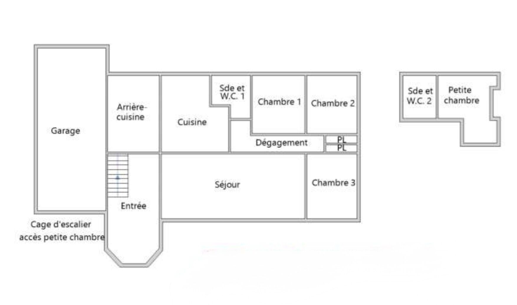
Iad France - Raphael Lamy vous propose : Située à quelques pas du bourg d’Olonne-sur-Mer, découvrez cette maison mitoyenne de 2018. Elle offre au rez-de-chaussée une chambre, une salle d’eau, un WC, ainsi qu’un séjour avec cuisine ouverte donnant sur la terrasse. À l’étage, deux chambres et un WC. À l’extérieur, vous bénéficierez d’un carport couvert, d’un abri de jardin et d’un terrain à aménager selon vos envies. Les atouts : Chauffage au sol Construction récente (2018), aucun travaux à prévoir Trois chambres dont une en rez-de-chaussée Stationnement privatif sous carport Environnement calme et proche des commodités (boulangerie, médecin, école) À noter : ce bien fait partie d’un ensemble de deux maisons identiques, avec la possibilité d’acquérir l’ensemble en un seul lot. Une opportunité idéale pour un projet d’investissement, de résidence principale + locatif, ou pour accueillir un proche à proximité. Honoraires d'agence à la charge du vendeur. Information d'affichage énergétique sur ce bien : classe ENERGIE C indice 97 et classe CLIMAT C indice 12. Les informations sur les risques auxquels ce bien est exposé, y compris l'obligation légale de débroussaillement, sont disponibles sur le site Géorisques : http://www.georisques.gouv.fr. La présente annonce immobilière a été rédigée sous la responsabilité éditoriale de M Raphael Lamy mandataire indépendant en immobilier (sans détention de fonds), agent commercial de la SAS I@D France immatriculé au RSAC de LA ROCHE SUR YON sous le numéro 508731486, titulaire de la carte de démarchage immobilier pour le compte de la société I@D France SAS.
À proximité
Recherche des commodités à proximité...
Détails de l'annonce
Localisation
Ville
Les Sables-d'Olonne
Pays
FR
Diagnostics / Énergie
Diagnostic DPE
97
Diagnostic GES
12
Surfaces / Pièces / Composition
Nombre d’étages
2
Chauffage et diagnostics
Diagnostic de performance énergétique (DPE)
a
b
c
d
e
f
g
Indice d'émission de gaz à effet de serre (GES)
a
b
c
d
e
f
g
