Type
Bien immobilierTarif
69 000 €Chambres
0Salles de bain
0Vente Terrain à bâtir 977 m²
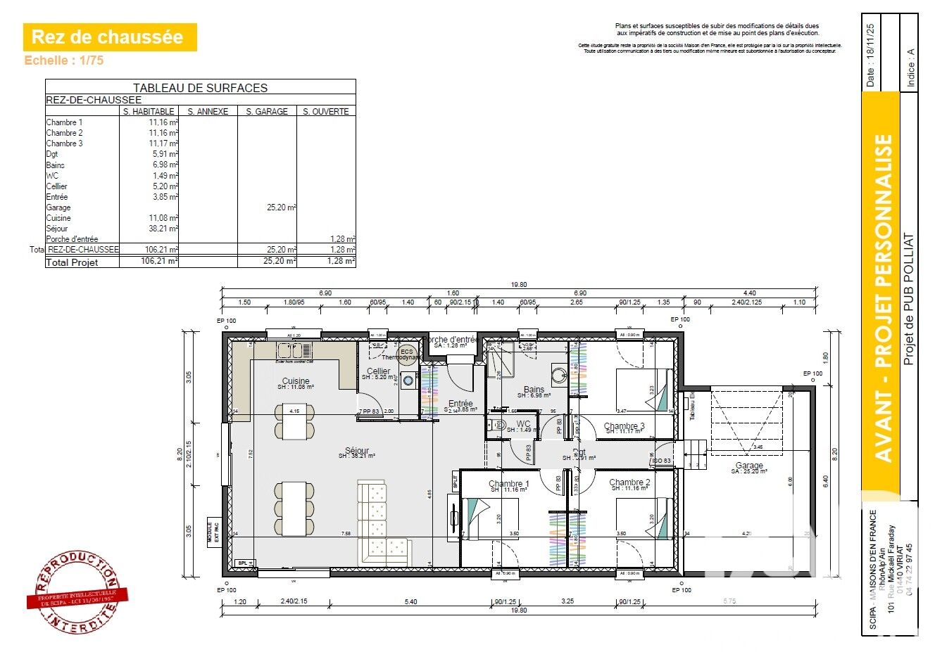
Iad France - Hervé Vacher vous propose : Terrain de 977 m² non viabilisé dont 682 m² en Zone Nh (naturelle protégée avec nouvelle construction possible), hors lotissement. Les réseaux sont en bordure de chemin d'accès. À 2 Km du centre du village de Polliat avec tous les commerces et commodités, médecins, pharmacie. et 4 Km du centre du village d'Attignat, cette parcelle se situe à moins de 15mn du centre de Bourg-en-Bresse et 30mn de Mâcon avec un accès rapide aux axes routiers principaux. Etude de sol G1 réalisée. Terrain borné et libre de constructeur, avec une très légère pente. Assainissement individuel. Le PLU autorise des constructions jusqu'à 9m de hauteur avec 5m de retrait par rapport aux limites séparatives et 6m par rapport à l'alignement sans qu'aucune règlementation sur le coefficient d'occupation des sols ne s'impose, ce qui laisse des possibilités pour une bonne emprise au sol. La coupe d'arbres est possible (hors dessouchage) selon souhait des acquéreurs. Le terrain est libre de tout constructeur et notre partenaire Maisons d'en France a réalisé plusieurs avant-projets sur ce terrain et vous propose un scénario sur mesure élaboré gratuitement sur demande (pour exemple Maison plain-pied de 106 m² avec le terrain compris pour 245 960€ (VRD, viabilisation et frais de notaires en sus). Honoraires d'agence à la charge du vendeur. Bien non soumis au DPE. Les informations sur les risques auxquels ce bien est exposé, y compris l'obligation légale de débroussaillement, sont disponibles sur le site Géorisques : http://www.georisques.gouv.fr. La présente annonce immobilière a été rédigée sous la responsabilité éditoriale de M Hervé Vacher mandataire indépendant en immobilier (sans détention de fonds), agent commercial de la SAS I@D France immatriculé au RSAC de BOURG-EN BRESSE sous le numéro 920997947, titulaire de la carte de démarchage immobilier pour le compte de la société I@D France SAS.
À proximité
Recherche des commodités à proximité...
Détails de l'annonce
Localisation
Ville
Polliat
Pays
FR
Surfaces / Pièces / Composition
Nombre d’étages
Chauffage et diagnostics
Diagnostic de performance énergétique (DPE)
a
b
c
d
e
f
g
Indice d'émission de gaz à effet de serre (GES)
a
b
c
d
e
f
g
