Type
Bien immobilierTarif
359 000 €Chambres
4Salles de bain
0Vente Appartement 6 pièces
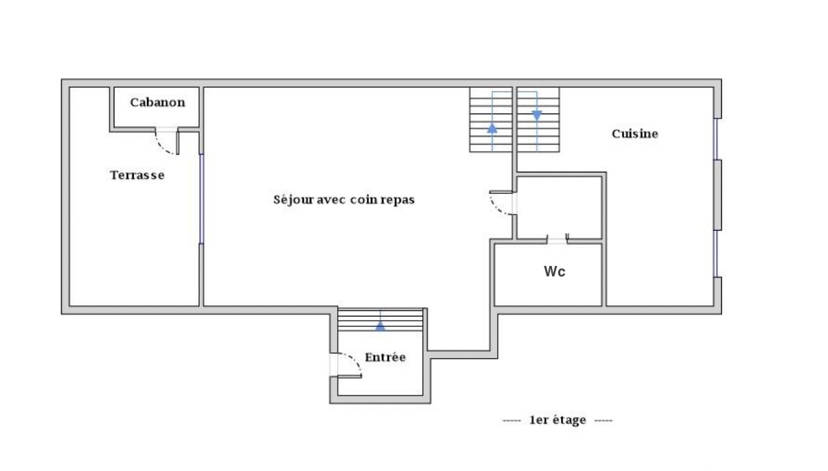
Iad France - Claire Del Din vous propose : * BAILLY CENTRE * DU CHARME * BEAUX VOLUMES * 4 chambres + 1 bureau * BELLE TERRASSE * GARAGE * En plein coeur de BAILLY, découvrez ce Triplex idéalement situé : écoles et commerces à 50 mètres, bus vers le RER A ou Disneyland Paris et accès à la A4 à 5 minutes. LUMINEUX et CHALEUREUX, cet appartement propose dès l’entrée, un bel espace de vie avec salon-séjour donnant sur la terrasse orientée Sud, une cuisine dinatoire entièrement aménagée avec des équipements de QUALITÉ. Sur 2 niveaux : 4 chambres avec rangements, 1 bureau, 1 salle de bain et 1 salle d’eau, 3 WC au total. Une terrasse de 20 m² avec son cabanon pour profiter des beaux jours. Enfin un grand garage pour voiture, moto, vélo, stockage… * LES PLUS * : la décoration SOIGNÉE, avec son parquet en chêne massif et ses teintes douces, fait de ce triplex un havre de paix pour toute la famille. Du CHARME et du CARACTÈRE dans un environnement facilitant le quotidien pour chacun ! * MON AVIS * : Ce Triplex est idéal pour une famille de citadins, pas de perte de temps, TOUT est à portée de main ! Ou pour un investisseur cherchant à faire de la colocation à 2 pas de Disney et du Val d'Europe. ENVIE DE LE DECOUVRIR ? Appelez-moi sans tarder ! La presente annonce immobiliere vise 2 lots situés dans une copropriété de 55 lots au total et ne faisant l'objet d'aucune procédure en cours citée à l'article L. 721-1 du code de la construction et de l'habitation. Montant moyen mensuel de charges déclaré par le vendeur : 136€ par mois (soit 1632 € annuel). Honoraires d'agence à la charge du vendeur. Information d'affichage énergétique sur ce bien : classe ENERGIE C indice 149 et classe CLIMAT A indice 5. Les informations sur les risques auxquels ce bien est exposé, y compris l'obligation légale de débroussaillement, sont disponibles sur le site Géorisques : http://www.georisques.gouv.fr. La présente annonce immobilière a été rédigée sous la responsabilité éditoriale de Mme Claire Del Din mandataire indépendant en immobilier (sans détention de fonds), agent commercial de la SAS I@D France immatriculé au RSAC de MEAUX sous le numéro 893728204, titulaire de la carte de démarchage immobilier pour le compte de la société I@D France SAS.
À proximité
Recherche des commodités à proximité...
Détails de l'annonce
Localisation
Ville
Bailly-Romainvilliers
Pays
FR
Diagnostics / Énergie
Diagnostic DPE
149
Diagnostic GES
5
Surfaces / Pièces / Composition
Nombre d’étages
3
Chauffage et diagnostics
Diagnostic de performance énergétique (DPE)
a
b
c
d
e
f
g
Indice d'émission de gaz à effet de serre (GES)
a
b
c
d
e
f
g
