Type
Bien immobilierTarif
118 990 €Chambres
1Salles de bain
0Vente Studio 1 pièce
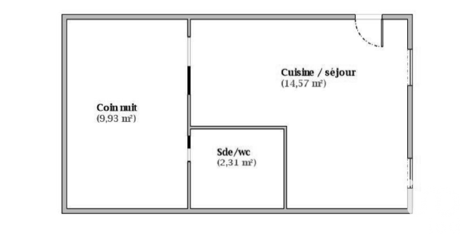
Iad France - Marie Barbin vous propose : Dans un quartier paisible, découvrez ce beau studio de 27 m², situé en rez-de-chaussée d’une copropriété à taille humaine. Il se compose d’une cuisine américaine aménagée et équipée, ouverte sur un séjour lumineux, d’un COIN NUIT et d’une salle d’eau moderne avec douche. Une cave complète ce bien. Bénéficiant d’un agencement optimisé et d’une belle luminosité, ce bien offre un cadre de vie agréable et fonctionnel, à proximité immédiate des écoles (290 m) et des commerces (1,5 km). Idéal pour un premier achat ou un investissement locatif. - Faibles charges - Aucun travaux à prévoir Une belle opportunité à VISITER sans tarder ! La presente annonce immobiliere vise 3 lots situés dans une copropriété de 13 lots au total et ne faisant l'objet d'aucune procédure en cours citée à l'article L. 721-1 du code de la construction et de l'habitation. Montant moyen mensuel de charges déclaré par le vendeur : 80€ par mois (soit 960 € annuel). Honoraires d'agence à la charge du vendeur. Information d'affichage énergétique sur ce bien : classe ENERGIE E indice 340 et classe CLIMAT C indice 13. Les informations sur les risques auxquels ce bien est exposé, y compris l'obligation légale de débroussaillement, sont disponibles sur le site Géorisques : http://www.georisques.gouv.fr. La présente annonce immobilière a été rédigée sous la responsabilité éditoriale de Mme Marie Barbin mandataire indépendant en immobilier (sans détention de fonds), agent commercial de la SAS I@D France immatriculé au RSAC de CRETEIL sous le numéro 899953327, titulaire de la carte de démarchage immobilier pour le compte de la société I@D France SAS.
À proximité
Recherche des commodités à proximité...
Détails de l'annonce
Localisation
Ville
Villeneuve-le-Roi
Pays
FR
Diagnostics / Énergie
Diagnostic DPE
340
Diagnostic GES
13
Surfaces / Pièces / Composition
Nombre d’étages
2
Chauffage et diagnostics
Diagnostic de performance énergétique (DPE)
a
b
c
d
e
f
g
Indice d'émission de gaz à effet de serre (GES)
a
b
c
d
e
f
g
