Type
Bien immobilierTarif
319 000 €Chambres
1Salles de bain
0Vente Appartement 2 pièces
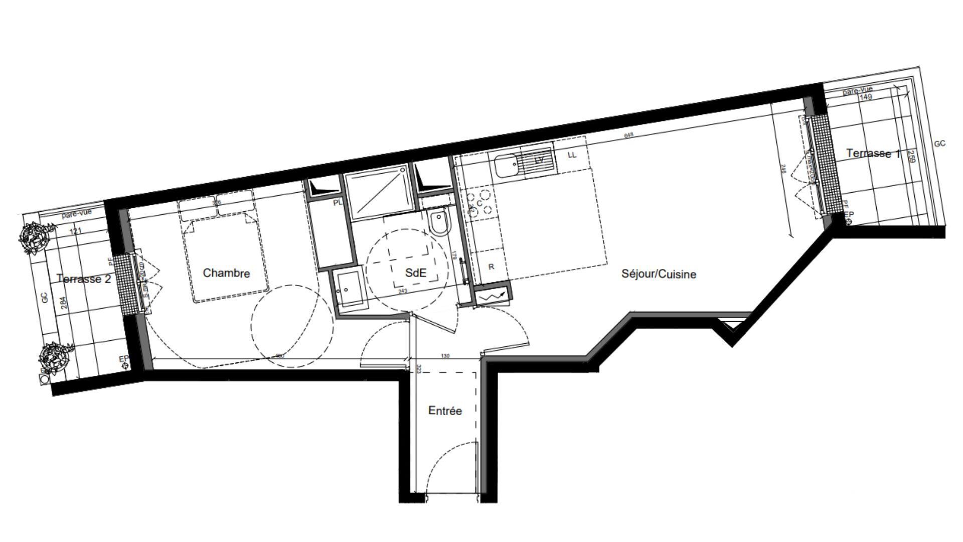
Iad France - Sarah Rozière (06 99 86 19 42) vous propose : Appartement T2 avec terrasses à Clamart. Située avenue Réaumur, au cOEur d’un environnement verdoyant et dynamique, la résidence contemporaine Opalya conjugue élégance architecturale et confort de vie. À proximité du tramway T6 (arrêt Pavé Blanc), des commerces de la place Aimé Césaire, des écoles et des espaces verts, cette adresse offre un cadre paisible à seulement quelques minutes de Paris. Disponible 2027. Un appartement raffiné : Situé au 5 ème étage, cet appartement T2 de 45 m² environ habitables se prolonge par une terrasse de 4 m² environ. - Séjour / cuisine de 23 m² environ. - Une chambre confortable. - Salle d'eau moderne. - Annexes incluses : un parking intérieur. De belles prestations : - Chauffage collectif au gaz, avec radiateurs à eau chaude et thermostat programmable. - Volets roulants électriques et menuiseries à double vitrage pour une isolation optimale. - Résidence sécurisée avec visiophone, digicode Vigik et ascenseur. - Espaces verts paysagers, stationnements en sous-sol et locaux à vélos sécurisés. L’art de vivre à Clamart : - À 2 min à pied du tram T6 Pavé Blanc et 6 min de la place Aimé Césaire. - Proche du centre commercial Vélizy 2, des commerces, écoles et crèches. - Accès rapide à Paris (porte de Châtillon à 8 km) et à l’aéroport d’Orly (14 km). N’hésitez pas à me contacter pour plus d’informations ou pour un accompagnement sur mesure. Honoraires d’agence à la charge du vendeur. Bien non soumis au DPE. Les informations sur les risques auxquels ce bien est exposé sont disponibles sur le site Géorisques : www.georisques.gouv.fr. La présente annonce immobilière a été rédigée sous la responsabilité éditoriale de Mlle Sarah Rozière EI (ID 83696), mandataire indépendant en immobilier (sans détention de fonds), agent commercial de la SAS I@D France immatriculé au RSAC de Clermont-Ferrand sous le numéro 978616993, titulaire de la carte de démarchage immobilier pour le compte de la société I@D France SAS. Retrouvez tous nos biens sur notre site internet. www.iadfrance.fr.
À proximité
Recherche des commodités à proximité...
Détails de l'annonce
Localisation
Ville
Clamart
Pays
FR
Surfaces / Pièces / Composition
Nombre d’étages
5
Étage
5
Chauffage et diagnostics
Diagnostic de performance énergétique (DPE)
a
b
c
d
e
f
g
Indice d'émission de gaz à effet de serre (GES)
a
b
c
d
e
f
g
