Type
Bien immobilierTarif
599 000 €Chambres
6Salles de bain
0Vente Pavillon 9 pièces
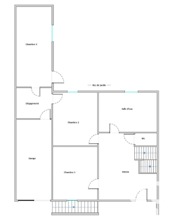
Iad France - Sophie Fuchs vous propose : * SOUS OFFRE * Montigny-lès-Metz + Maison familiale de 212 m² + Parc clos et arboré de 800 m² Située dans un environnement calme et recherché, cette maison de caractère offre de généreux volumes et un cadre de vie privilégié. Elle conjugue architecture singulière et confort moderne. Le rez-de-chaussée s’articule autour d’une pièce de réception de 42 m², lumineuse grâce à ses grandes ouvertures et à sa hauteur sous plafond de 3,50 m. Une cuisine aménagée et équipée s’ouvre sur une véranda climatisée de 16 m², offrant une vue dégagée sur le jardin clos et arboré. Une pièce au double usage douche et buanderie ainsi qu’un WC indépendant complètent ce niveau. L’étage propose cinq chambres, une salle de bains avec baignoire et douche, ainsi qu’un WC séparé. Les combles entièrement aménagés accueillent un espace bureau et une chambre supplémentaire avec salle d’eau privative. La maison a bénéficié de travaux réguliers : isolation des combles, chaudière à condensation, menuiseries aluminium double vitrage avec volets roulants électriques, rénovation du rez-de-chaussée, façade repeinte et toiture refaite, et installation d’une prise Green’Up. Des travaux de rafraîchissement intérieur sont à prévoir au premier étage, permettant aux futurs acquéreurs de personnaliser les espaces selon leurs besoins. Des visuels de projection réalisés par intelligence artificielle sont proposés afin d’aider à se projeter dans les aménagements possibles. Le sous-sol complet comprend un garage double avec portes motorisées, deux cave et une pièce polyvalente d’environ 20 m². À l’extérieur, le terrain clos et arboré de plus de 800 m² dispose d’une terrasse, d’une dépendance, d’un garage à vélos avec accès indépendant et d’une allée permettant le stationnement de plusieurs véhicules. Une propriété rare sur le secteur, offrant volumes, potentiel et qualité de vie. Pour tout renseignement ou pour organiser une visite, contactez-moi. Honoraires d'agence à la charge de l'acquéreur. Prix honoraires inclus : 599000 euros. Prix hors honoraires : 575000 euros. Honoraires TTC à la charge de l'acquéreur (4,17% du prix du bien hors honoraires) : 24000 euros. Information d'affichage énergétique sur ce bien : classe ENERGIE D indice 191 et classe CLIMAT D indice 40. Les informations sur les risques auxquels ce bien est exposé, y compris l'obligation légale de débroussaillement, sont disponibles sur le site Géorisques : http://www.georisques.gouv.fr. La présente annonce immobilière a été rédigée sous la responsabilité éditoriale de Mme Sophie Fuchs mandataire indépendant en immobilier (sans détention de fonds), agent commercial de la SAS I@D France immatriculé au RSAC de Metz sous le numéro 923276174, titulaire de la carte de démarchage immobilier pour le compte de la société I@D France SAS.
À proximité
Recherche des commodités à proximité...
Détails de l'annonce
Localisation
Ville
Montigny-Lès-Metz
Pays
FR
Diagnostics / Énergie
Diagnostic DPE
191
Diagnostic GES
40
Finances / Mandat / Références
Honoraires
24 €
Surfaces / Pièces / Composition
Nombre d’étages
3
Chauffage et diagnostics
Diagnostic de performance énergétique (DPE)
a
b
c
d
e
f
g
Indice d'émission de gaz à effet de serre (GES)
a
b
c
d
e
f
g
