Type
Bien immobilierTarif
83 000 €Chambres
4Salles de bain
0Vente Appartement 5 pièces
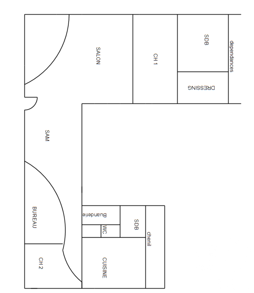
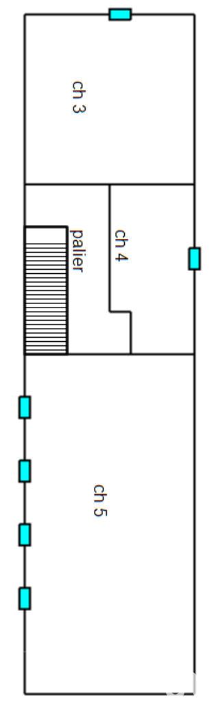
Iad France - Claire Gouedard vous propose : Spacieux appartement familial Appartement 5 pièces | Rez-de-chaussée surélevé | Idéal famille ou investisseur Découvrez ce grand appartement situé au cOEur du plateau du Grand Quartier, dans le secteur dynamique d’Europe. Rue de Lisbonne Un cadre de vie pratique et agréable à seulement 5 min en voiture de la plage du Valais Commodités à deux pas : boulangeries, petit supermarché, pharmacies… tout est accessible à pied, pour une vie plus simple. Écoles à proximité immédiate : de la maternelle au lycée, vos enfants peuvent grandir et s’épanouir sans contraintes. Transports en commun : à moins de 200 m, les lignes de bus TUB (Prague, Genève, Venise) assurent une excellente connexion avec le reste de la ville. Vie de quartier fluide : tous les services sont accessibles en quelques pas – l’idéal pour une vie sans voiture. Un appartement spacieux au fort potentiel Situé au rez-de-chaussée surélevé d’une copropriété sécurisée avec digicode, ce logement de 5 pièces offre une belle surface et une configuration fonctionnelle : Une entrée sécurisée, Un séjour lumineux, Une cuisine indépendante, Un couloir de distribution : Quatre chambres confortables, une salle de bain, un WC séparé, un point d’eau supplémentaire (avec lavabo), un espace dressing, Et une cave privative, idéale pour le stockage. Le chauffage est collectif au gaz. Les menuiseries sont en bois avec simple vitrage. Des travaux de modernisation sont à prévoir, mais le potentiel est réel pour créer un intérieur à votre goût. Un bien idéal pour : une grande famille à la recherche d’espace et de confort, un premier achat, ou un investissement locatif dans un secteur en demande. N’attendez plus pour découvrir cet appartement aux multiples atouts ! La presente annonce immobiliere vise 2 lots situés dans une copropriété de 98 lots au total et ne faisant l'objet d'aucune procédure en cours citée à l'article L. 721-1 du code de la construction et de l'habitation. Montant moyen mensuel de charges déclaré par le vendeur : 163.03€ par mois (soit 1956.4 € annuel). Honoraires d'agence à la charge du vendeur. Information d'affichage énergétique sur ce bien : classe ENERGIE F indice 339 et classe CLIMAT F indice 75. Les informations sur les risques auxquels ce bien est exposé, y compris l'obligation légale de débroussaillement, sont disponibles sur le site Géorisques : http://www.georisques.gouv.fr. La présente annonce immobilière a été rédigée sous la responsabilité éditoriale de Mme Claire Gouedard mandataire indépendant en immobilier (sans détention de fonds), agent commercial de la SAS I@D France immatriculé au RSAC de SAINT BRIEUC sous le numéro 879935179, titulaire de la carte de démarchage immobilier pour le compte de la société I@D France SAS.
À proximité
Recherche des commodités à proximité...
Détails de l'annonce
Localisation
Ville
Saint-Brieuc
Pays
FR
Diagnostics / Énergie
Diagnostic DPE
339
Diagnostic GES
75
Surfaces / Pièces / Composition
Nombre d’étages
4
Chauffage et diagnostics
Diagnostic de performance énergétique (DPE)
a
b
c
d
e
f
g
Indice d'émission de gaz à effet de serre (GES)
a
b
c
d
e
f
g
