Trouver...

Language: FR

Devise: EUR

Type
Bien immobilier
Tarif
181 500 €
Chambres
0
Salles de bain
0

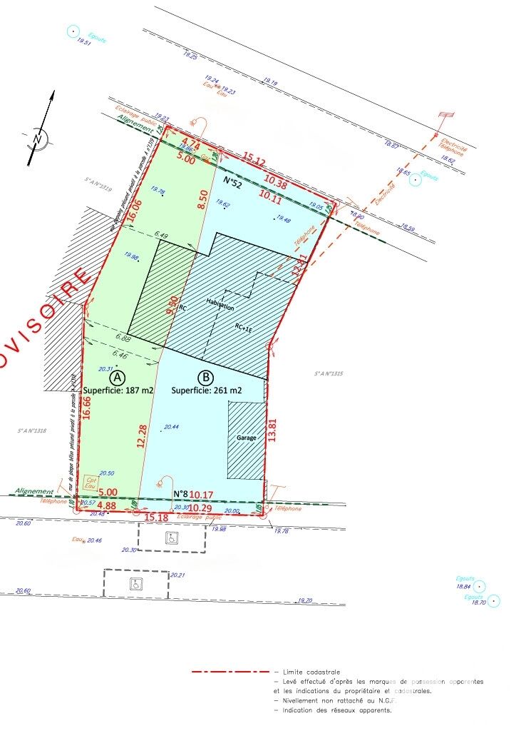
Vente Terrain 187 m²

Iad France - Gemael Mambouana vous propose : Terrain Constructible de 187 m² à Neuilly-Plaisance - Idéal pour Projet de Construction Rare sur le marché ! Situé à Neuilly-Plaisance, ce terrain constructible de 187 m² offre une opportunité unique pour concrétiser votre projet de construction sur mesure. Niché dans un quartier calme et résidentiel, ce terrain offre un cadre de vie paisible tout en étant proche des commodités et des transports. Ce terrain vous permettra de laisser libre cours à votre imagination pour créer la maison de vos rêves. Que ce soit pour une maison individuelle, ou tout autre projet de construction, les possibilités sont infinies. La parcelle est déjà viabilisée, vous bénéficiez donc de toutes les connexions nécessaires : électricité, gaz, eau potable, assainissement, eaux pluviales. Un atout non négligeable qui simplifiera grandement vos démarches. Ne manquez pas cette opportunité exceptionnelle d'acquérir un terrain à bâtir à Neuilly-Plaisance. Contactez moi dès aujourd'hui pour plus d'informations et pour organiser une visite. N'attendez plus pour donner vie à votre projet immobilier ! Honoraires d'agence à la charge du vendeur. Bien non soumis au DPE. Les informations sur les risques auxquels ce bien est exposé, y compris l'obligation légale de débroussaillement, sont disponibles sur le site Géorisques : http://www.georisques.gouv.fr. La présente annonce immobilière a été rédigée sous la responsabilité éditoriale de M Gemael Mambouana mandataire indépendant en immobilier (sans détention de fonds), agent commercial de la SAS I@D France immatriculé au RSAC de MEAUX sous le numéro 911552891, titulaire de la carte de démarchage immobilier pour le compte de la société I@D France SAS.

À proximité

Recherche des commodités à proximité...

Détails de l'annonce

Localisation

Ville
Neuilly-Plaisance
Pays
FR

Surfaces / Pièces / Composition

Nombre d’étages

Chauffage et diagnostics

Diagnostic de performance énergétique (DPE)
a
b
c
d
e
f
g
Indice d'émission de gaz à effet de serre (GES)
a
b
c
d
e
f
g
Rappelez-moi