Type
Bien immobilierTarif
320 000 €Chambres
2Salles de bain
0Vente Appartement 3 pièces
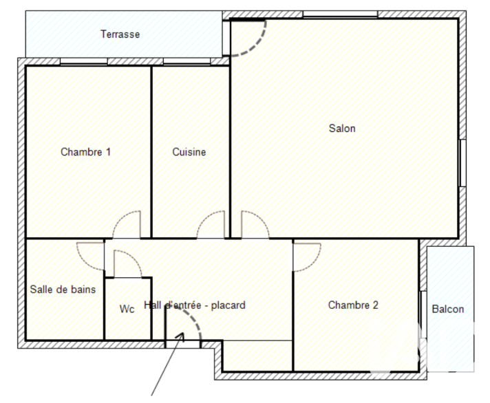
Iad France - Jennifer Mouton vous propose : * VENDU LOUÉ – ESTIENNE D’ORVES – AU CALME – PARKING PRIVÉ * Dans le QUARTIER RECHERCHÉ d’ESTIENNE D’ORVES, découvrez ce spacieux 3 pièces de 86 m², situé au 3ème étage sur 5 avec ASCENSEUR. IDÉAL INVESTISSEUR - REVENU LOCATIF IMMÉDIAT L’appartement se compose : •d’une grande entrée avec placard •d’un séjour lumineux de 33 m² •d’une cuisine indépendante • de deux chambres de 12 et 14 m² offrant chacune un accès extérieur, l’une avec balcon privatif, l’autre avec accès direct à la terrasse principale •d’une salle de bains et des toilettes séparés. Le séjour et la cuisine s’ouvrent sur une agréable TERRASSE SANS VIS-À-VIS exposée SUD de 9 m² offrant une belle luminosité. UNE CAVE ainsi qu’UNE PLACE DE STATIONNEMENT PRIVATIVE complètent ce bien. L’appartement bénéficie d’un emplacement privilégié, à proximité immédiate des commerces, écoles, transports et espaces verts. * L’appartement vendu loué, est occupé par une locataire sérieuse en place depuis plusieurs années, offrant une stabilité locative immédiate. Idéal pour un investissement patrimonial sécurisé avec revenus locatifs dès l’acquisition. Les charges comprennent l’eau froide, l’eau chaude et le chauffage, facilitant la gestion locative avec des charges globalisées. Planifiez dès à présent votre visite. Disponible 7 jours sur 7. La presente annonce immobiliere vise 3 lots situés dans une copropriété de 39 lots au total et ne faisant l'objet d'aucune procédure en cours citée à l'article L. 721-1 du code de la construction et de l'habitation. Montant moyen mensuel de charges déclaré par le vendeur : 278€ par mois (soit 3336 € annuel). Honoraires d'agence à la charge du vendeur. Information d'affichage énergétique sur ce bien : classe ENERGIE E indice 166 et classe CLIMAT E indice 51. Les informations sur les risques auxquels ce bien est exposé, y compris l'obligation légale de débroussaillement, sont disponibles sur le site Géorisques : http://www.georisques.gouv.fr. La présente annonce immobilière a été rédigée sous la responsabilité éditoriale de Mme Jennifer Mouton mandataire indépendant en immobilier (sans détention de fonds), agent commercial de la SAS I@D France immatriculé au RSAC de ANTIBES CEDEX sous le numéro 920982725, titulaire de la carte de démarchage immobilier pour le compte de la société I@D France SAS.
Cette semaine
Cette annonce est récente
À proximité
Recherche des commodités à proximité...
Détails de l'annonce
Localisation
Ville
Nice
Pays
FR
Diagnostics / Énergie
Diagnostic DPE
166
Diagnostic GES
51
Surfaces / Pièces / Composition
Nombre d’étages
5
Étage
3
Chauffage et diagnostics
Diagnostic de performance énergétique (DPE)
a
b
c
d
e
f
g
Indice d'émission de gaz à effet de serre (GES)
a
b
c
d
e
f
g
