Trouver...

Language: FR

Devise: EUR

Vente Immeuble 219 m²

Publié le 26 January 2026
Type
Bien immobilier
Tarif
580 000 €
Chambres
0
Salles de bain
0

Vente Immeuble 219 m²

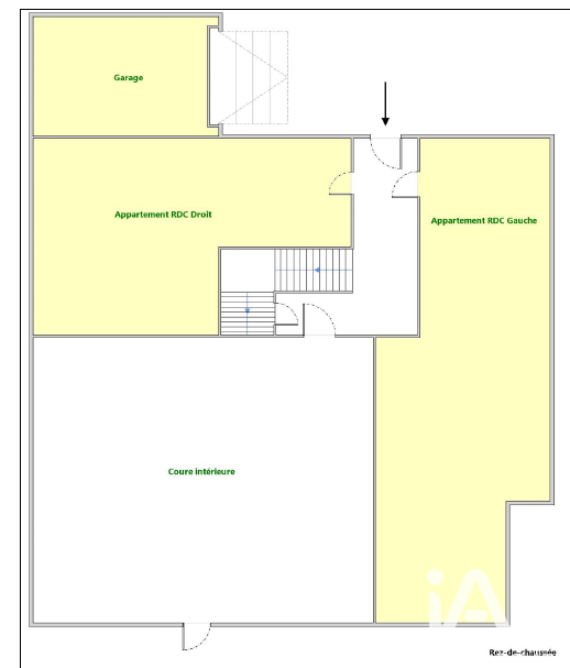
Iad France - Marie Barbin vous propose : Idéalement situé en plein centre-ville d’Étampes, à seulement 8 minutes à pied de la gare, cet IMMEUBLE de CARACTÈRE offre un cadre de vie RARE et RECHERCHE. Édifié sur une parcelle de 630 m², il séduit par son grand jardin arboré bordé d’un cours d’eau, VÉRITABLE HAVRE DE PAIX en centre-ville, à proximité immédiate des commerces, écoles et transports. L’immeuble développe 219 m² habitables, complétés par un grenier aménageable de 53 m², offrant un fort potentiel de valorisation. Il comprend 5 appartements (1 Studio, 2 Appartement F2, Un F3 et un F4 ), une cave, des dépendances, une terrasse ainsi qu’un garage accolé sur rue. Les revenus locatifs existants assurent un rendement locatif brut d’environ 7 %, avec un appartement actuellement disponible, laissant une marge d’optimisation intéressante. Un bien patrimonial rare, alliant charme, rentabilité et emplacement central, idéal pour un investisseur ou un projet patrimonial de qualité. Pour plus d’informations ou organiser une visite, n’hésitez pas à me contacter. Honoraires d'agence à la charge du vendeur. Information d'affichage énergétique sur ce bien : classe ENERGIE E indice 316 et classe CLIMAT C indice 28. Les informations sur les risques auxquels ce bien est exposé, y compris l'obligation légale de débroussaillement, sont disponibles sur le site Géorisques : http://www.georisques.gouv.fr. La présente annonce immobilière a été rédigée sous la responsabilité éditoriale de Mme Marie Barbin mandataire indépendant en immobilier (sans détention de fonds), agent commercial de la SAS I@D France immatriculé au RSAC de CRETEIL sous le numéro 899953327, titulaire de la carte de démarchage immobilier pour le compte de la société I@D France SAS.

À proximité

Recherche des commodités à proximité...

Détails de l'annonce

Localisation

Ville
Étampes
Pays
FR

Diagnostics / Énergie

Diagnostic DPE
316
Diagnostic GES
28

Surfaces / Pièces / Composition

Nombre d’étages
3

Chauffage et diagnostics

Diagnostic de performance énergétique (DPE)
a
b
c
d
e
f
g
Indice d'émission de gaz à effet de serre (GES)
a
b
c
d
e
f
g
Rappelez-moi