Type
Bien immobilierTarif
992 000 €Chambres
5Salles de bain
0Vente Maison d'architecte 7 pièces
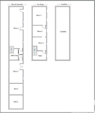
Iad France - Chloe Camart vous propose : Maison d’architecte contemporaine avec vue dégagée – 190 m² – 5 chambres – terrain paysager Située dans le secteur très recherché des Coteaux de Chennevières-sur-Marne, à proximité immédiate de Saint-Maur-des-Fossés et du quartier prisé de La Varenne-Saint-Hilaire, cette maison d’architecte de 2011 offre un cadre de vie rare, alliant volumes généreux, luminosité et prestations de standing. Développant 190 m² habitables, cette propriété contemporaine est implantée sur un terrain paysager de 532 m², à l’abri des regards. Un espace de vie lumineux et convivial Le cOEur de la maison dévoile une magnifique pièce de réception baignée de lumière, sublimée par de larges baies vitrées ouvrant sur les terrasses et le jardin. Un poêle à bois design apporte une atmosphère chaleureuse à cet espace de vie aux volumes généreux. La cuisine haut de gamme, entièrement équipée, s’ouvre naturellement sur la pièce principale, idéale pour recevoir famille et amis. Un agencement familial parfaitement pensé Au rez-de-chaussée, vous bénéficierez d’une suite parentale avec salle d’eau, offrant un confort de vie de plain-pied. À l’étage, un large palier dessert quatre chambres spacieuses, ainsi qu’une salle de bains moderne avec de nombreux rangements intégrés. Des espaces supplémentaires rares Le niveau rez-de-jardin propose : •un bureau indépendante, idéale pour une profession libérale ou le télétravail •une grande buanderie •un garage triple permettant d’accueillir plusieurs véhicules. Prestations de qualité •Architecture contemporaine (2011) •Vue dégagée et imprenable •DPE Classe C •Aucun travaux à prévoir •Deux terrasses et jardin arboré Un emplacement recherché À proximité du centre-ville, des écoles réputées et des transports, cette maison offre un cadre de vie privilégié aux portes de Paris. Honoraires d'agence à la charge du vendeur. Information d'affichage énergétique sur ce bien : classe ENERGIE C indice 161 et classe CLIMAT A indice 5. Les informations sur les risques auxquels ce bien est exposé, y compris l'obligation légale de débroussaillement, sont disponibles sur le site Géorisques : http://www.georisques.gouv.fr. La présente annonce immobilière a été rédigée sous la responsabilité éditoriale de Mme Chloe Camart mandataire indépendant en immobilier (sans détention de fonds), agent commercial de la SAS I@D France immatriculé au RSAC de MELUN sous le numéro 994285674, titulaire de la carte de démarchage immobilier pour le compte de la société I@D France SAS.
Ce mois
Cette annonce est récente
À proximité
Recherche des commodités à proximité...
Détails de l'annonce
Localisation
Ville
Chennevières-sur-Marne
Pays
FR
Diagnostics / Énergie
Diagnostic DPE
161
Diagnostic GES
5
Surfaces / Pièces / Composition
Nombre d’étages
3
Chauffage et diagnostics
Diagnostic de performance énergétique (DPE)
a
b
c
d
e
f
g
Indice d'émission de gaz à effet de serre (GES)
a
b
c
d
e
f
g
