Type
Bien immobilierTarif
167 000 €Chambres
2Salles de bain
0Vente Maison traditionnelle 3 pièces
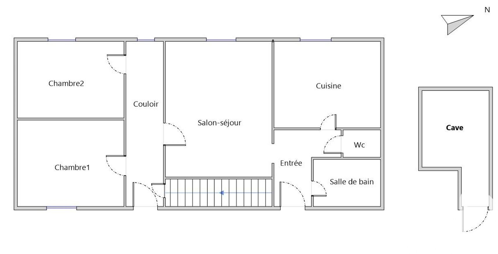
Iad France - Marc Moret vous propose : Vous recherchez une maison traditionnelle pleine de charme à aménager à votre goût ? Ne cherchez plus, cette propriété nichée au cOEur du village de Bazoches-les-Gallerandes près de Pithiviers, est parfaite pour réaliser votre projet de vie : Situé dans un cadre paisible proche des écoles et des commerces, découvrez cet ensemble immobilier édifié sur un beau terrain plat de 1267 m² environ qui se compose : - D'une maison traditionnelle de 68 m² environ configurée en plain-pied, permettant un accès et une circulation facilités. Quelques travaux de décoration seront nécessaires, ce qui en fait une opportunité idéale pour exprimer votre créativité et personnaliser chaque espace selon vos envies. - De nombreuses surfaces annexes : un vaste grenier de 49 m² environ potentiellement aménageable, un atelier attenant de 20 m² environ, et une belle grange cathédrale de 47 m² environ sur sol stabilisé. - Atout supplémentaire, une dépendance de 28 m² environ confortable, fonctionnelle et parfaitement aménagée complète ce bien. Elle se prête à de nombreux usages : Espace indépendant, atelier d'artiste, bureau,. - Enfin, une vaste terrasse orientée sud-est donne accès au jardin et à une belle cave voûtée. Dans ce cadre, vous pourrez profiter du calme et de la sérénité de la nature environnante. Laissez libre cours à votre imagination, exploitez ce magnifique potentiel et créez votre cocon idéal ! Contactez-nous dès maintenant pour organiser une visite et découvrir les atouts de cette magnifique maison traditionnelle. Honoraires d'agence à la charge du vendeur. Information d'affichage énergétique sur ce bien : classe ENERGIE D indice 222 et classe CLIMAT D indice 48. Les informations sur les risques auxquels ce bien est exposé, y compris l'obligation légale de débroussaillement, sont disponibles sur le site Géorisques : http://www.georisques.gouv.fr. La présente annonce immobilière a été rédigée sous la responsabilité éditoriale de M Marc Moret mandataire indépendant en immobilier (sans détention de fonds), agent commercial de la SAS I@D France immatriculé au RSAC de MELUN sous le numéro 928907963, titulaire de la carte de démarchage immobilier pour le compte de la société I@D France SAS.
À proximité
Recherche des commodités à proximité...
Détails de l'annonce
Localisation
Ville
Bazoches-les-Gallerandes
Pays
FR
Diagnostics / Énergie
Diagnostic DPE
222
Diagnostic GES
48
Chauffage et diagnostics
Diagnostic de performance énergétique (DPE)
a
b
c
d
e
f
g
Indice d'émission de gaz à effet de serre (GES)
a
b
c
d
e
f
g
