Type
Bien immobilierTarif
191 000 €Chambres
0Salles de bain
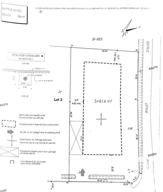
0Vente Terrain à bâtir 814 m²
Iad France - Franck Cheutin vous propose : À vendre à Saint-Féliu-d’Amont : magnifique terrain constructible de 814 m², situé dans une impasse au calme, dans un environnement résidentiel recherché. Ce terrain est vendu avec un permis de construire accordé pour une villa 4 faces de 150 m², pensée pour allier confort, luminosité et intimité. L’arrière du terrain offre une vue dégagée sur une zone agricole non constructible, garantissant un cadre naturel préservé et sans vis-à-vis. Le terrain, plat et bien exposé, permet une implantation idéale de la future maison. Situé à seulement quelques minutes de Perpignan, de Thuir et des axes principaux, ce bien représente une opportunité rare pour concrétiser un projet de vie dans un cadre serein, tout en restant proche des commodités. Honoraires d'agence à la charge du vendeur. Bien non soumis au DPE. Les informations sur les risques auxquels ce bien est exposé, y compris l'obligation légale de débroussaillement, sont disponibles sur le site Géorisques : http://www.georisques.gouv.fr. La présente annonce immobilière a été rédigée sous la responsabilité éditoriale de M Franck Cheutin mandataire indépendant en immobilier (sans détention de fonds), agent commercial de la SAS I@D France immatriculé au RSAC de Saint-Cyprien sous le numéro 979514486, titulaire de la carte de démarchage immobilier pour le compte de la société I@D France SAS.
À proximité
Recherche des commodités à proximité...
Détails de l'annonce
Localisation
Ville
Saint-Féliu-d'Amont
Pays
FR
Surfaces / Pièces / Composition
Nombre d’étages
Chauffage et diagnostics
Diagnostic de performance énergétique (DPE)
a
b
c
d
e
f
g
Indice d'émission de gaz à effet de serre (GES)
a
b
c
d
e
f
g
