Type
Bien immobilierTarif
420 000 €Chambres
3Salles de bain
0Vente Maison/villa 5 pièces
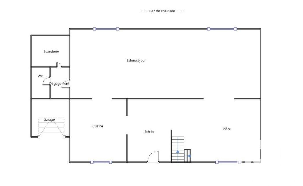
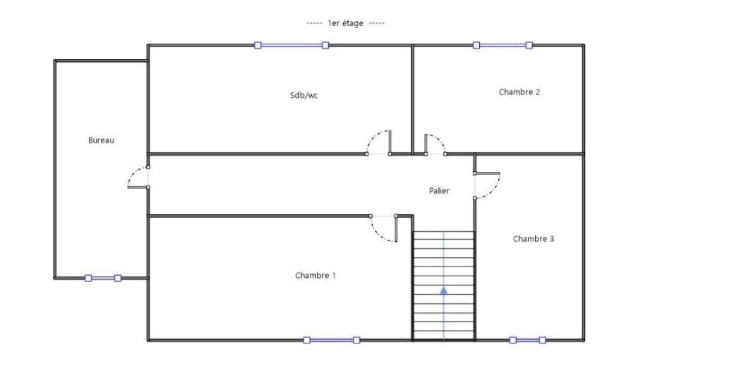
Iad France - Claire Hontarede vous propose : Située à Bourron Marlotte, joli village de caractère. Venez découvrir cette maison lumineuse de 110 m² en loi carrez et de plus de 135 m² au sol située sur une belle parcelle de terrain de 530 m², au calme et à deux pas de toutes les commodités. Rez-de-chaussée : entrée, agréable pièce de vie avec poêle à bois ouvrant directement sur le jardin arboré, cuisine, WC séparé et buanderie. À l’étage : couloir distribuant trois chambres ainsi qu’un bureau. Un garage de 8 m² complète l’ensemble, parfait pour le stockage. Emplacement privilégié : boulangeries, restaurants, marché et gare SNCF avec les trains pour Paris accessibles à pied en moins de 10 minutes. Si vous avez des enfants, l'école primaire est aussi à 10 minutes à pied, les bus pour collèges et lycées de Fontainebleau sont au bout de la rue. Venez découvrir cette maison fonctionnelle, chaleureuse et idéalement située. N'hésitez pas à me contacter pour organiser une visite. Honoraires d'agence à la charge du vendeur. Information d'affichage énergétique sur ce bien : classe ENERGIE D indice 198 et classe CLIMAT B indice 7. Les informations sur les risques auxquels ce bien est exposé, y compris l'obligation légale de débroussaillement, sont disponibles sur le site Géorisques : http://www.georisques.gouv.fr. La présente annonce immobilière a été rédigée sous la responsabilité éditoriale de Mme Claire Hontarede mandataire indépendant en immobilier (sans détention de fonds), agent commercial de la SAS I@D France immatriculé au RSAC de Melun sous le numéro 877850958, titulaire de la carte de démarchage immobilier pour le compte de la société I@D France SAS.
À proximité
Recherche des commodités à proximité...
Détails de l'annonce
Localisation
Ville
Bourron-Marlotte
Pays
FR
Diagnostics / Énergie
Diagnostic DPE
198
Diagnostic GES
7
Chauffage et diagnostics
Diagnostic de performance énergétique (DPE)
a
b
c
d
e
f
g
Indice d'émission de gaz à effet de serre (GES)
a
b
c
d
e
f
g
