Type
Bien immobilierTarif
269 900 €Chambres
2Salles de bain
0Vente Appartement 3 pièces
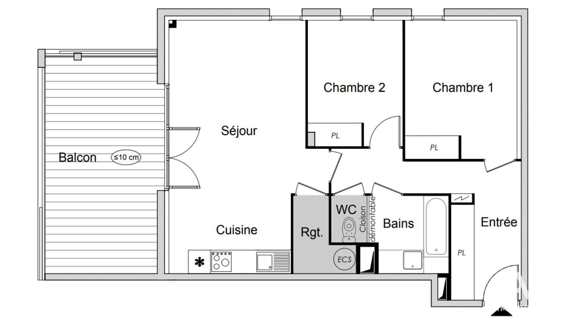
Iad France - Sarah Rozière (06 99 86 19 42) vous propose : Appartement T3 avec balcon à Valras-Plage. Située chemin du Carreyrou à Valras-Plage, la résidence Azuréa allie architecture contemporaine et esprit méditerranéen. À seulement quelques minutes à pied des plages et du cOEur de la station, cette adresse offre un cadre de vie agréable et calme au sein d’un environnement résidentiel préservé. Disponible 2027. Un appartement raffiné : Situé au 1 er étage, cet appartement T3 de 67 m² environ habitables se prolonge par un balcon de 19 m² environ. - Séjour / cuisine de 26 m² environ. - Deux chambres confortables. - Salle de bain moderne. - Annexe incluse : un parking. De belles prestations : - Chauffage du séjour par pompe à chaleur monosplit. - Volets roulants motorisés et menuiseries PVC double vitrage. - Résidence sécurisée avec ascenseur, vidéophone et stationnements. L’art de vivre à Valras-Plage : - À moins de 10 minutes à pied des plages et du front de mer. - Commerces, restaurants, marché et services accessibles à pied. - À proximité du port de plaisance et de la réserve naturelle des Orpellières. - Accès rapide à Béziers, à l’A9 et aux axes vers Montpellier et Narbonne. - Station balnéaire conviviale, idéale pour une résidence principale, un pied-à-terre ou un investissement locatif. N’hésitez pas à me contacter pour plus d’informations ou pour un accompagnement sur mesure. Honoraires d’agence à la charge du vendeur. Bien non soumis au DPE. Les informations sur les risques auxquels ce bien est exposé sont disponibles sur le site Géorisques : www.georisques.gouv.fr. La présente annonce immobilière a été rédigée sous la responsabilité éditoriale de Mlle Sarah Rozière EI (ID 83696), mandataire indépendant en immobilier (sans détention de fonds), agent commercial de la SAS I@D France immatriculé au RSAC de Clermont-Ferrand sous le numéro 978616993, titulaire de la carte de démarchage immobilier pour le compte de la société I@D France SAS. Retrouvez tous nos biens sur notre site internet. www.iadfrance.fr.
À proximité
Recherche des commodités à proximité...
Détails de l'annonce
Localisation
Ville
Valras-Plage
Pays
FR
Surfaces / Pièces / Composition
Nombre d’étages
3
Chauffage et diagnostics
Diagnostic de performance énergétique (DPE)
a
b
c
d
e
f
g
Indice d'émission de gaz à effet de serre (GES)
a
b
c
d
e
f
g
