Type
Bien immobilierTarif
273 000 €Chambres
5Salles de bain
0Vente Maison de village 7 pièces
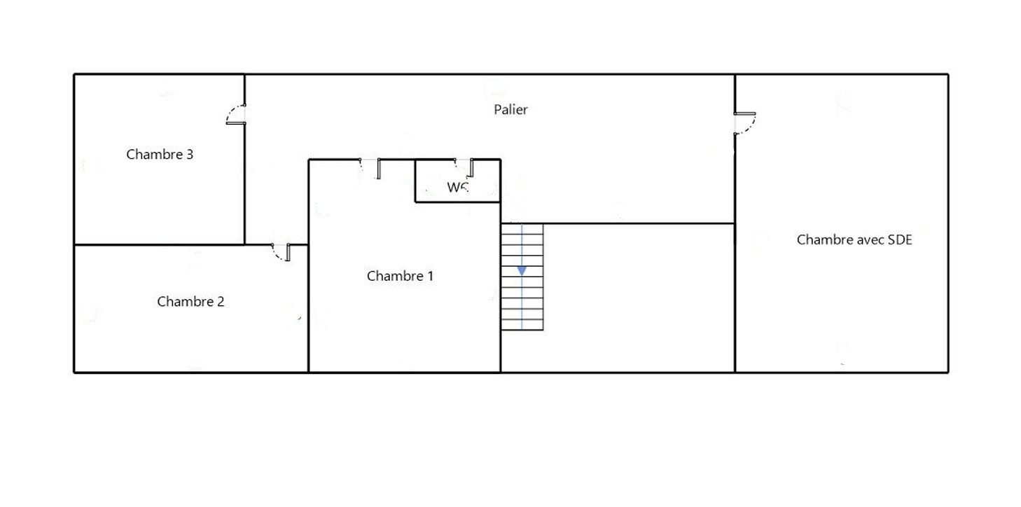
Iad France - Nathalie Sicault vous propose : NSI 1865500 Belle maison familiale de 199 m² - 5 chambres - Terrain clos de 6 000 m² avec piscine – Axe Poitiers 28 min / Angoulême 43 min. cette belle maison de 199 m² habitables offre un cadre de vie paisible et verdoyant, sur un vaste terrain clos et arboré de 6 000 m². Spacieuse, lumineuse et parfaitement entretenue, elle combine confort moderne et charme de la campagne, idéale pour accueillir une famille ou pour un projet de vie. Au rez-de-chaussée, vous découvrirez une grande cuisine aménagée et équipée de 35 m², un séjour de 38 m² comprenant un coin détente, une chambre de 11 m² accompagnée d’un dressing de 10 m², ainsi qu’une salle de bain équipée d’une baignoire, d’une douche et d’un WC. À l’étage, le palier dessert une suite parentale avec douche et placards intégrés, trois belles chambres de 19 m², 14 m² et 18 m², toutes avec placard et un WC indépendant. Côté confort, la maison bénéficie d’un système de chauffage mixte associant un poêle à granulés, une cheminée avec insert à bois à air pulsé et des radiateurs électriques. Elle dispose également d’une VMC, d’un chauffe-eau solaire et de menuiseries en double vitrage, garantissant un bon niveau d’isolation et d’efficacité énergétique. Un local indépendant de 11 m² avec une vasque, idéal pour recevoir ou pour un espace de travail. La fibre sera installée pour cette fin d'année 2025. Les extérieurs sont particulièrement agréables et bien aménagés : une piscine de 5 m par 11 m avec dôme de protection, aspirateur et douche solaire. Un four à pain traditionnel, une grange avec atelier de 55 m², un appentis de 100 m² et un abri de 50 m², offrant de nombreuses possibilités de rangement ou d’aménagement. Enfin, à noter que la fosse septique n’est pas conforme et nécessitera une mise aux normes. Aucun autre travaux majeurs ne sont à prévoir. En résumé, cette propriété allie espace, confort, cadre naturel, tout en restant proche des grands axes et des commodités. Un bien rare à découvrir sans tarder ! Honoraires d'agence à la charge du vendeur. Information d'affichage énergétique sur ce bien : classe ENERGIE C indice 159 et classe CLIMAT A indice 5. Les informations sur les risques auxquels ce bien est exposé, y compris l'obligation légale de débroussaillement, sont disponibles sur le site Géorisques : http://www.georisques.gouv.fr. La présente annonce immobilière a été rédigée sous la responsabilité éditoriale de Mme Nathalie Sicault mandataire indépendant en immobilier (sans détention de fonds), agent commercial de la SAS I@D France immatriculé au RSAC de NIORT sous le numéro 750707655, titulaire de la carte de démarchage immobilier pour le compte de la société I@D France SAS.
À proximité
Recherche des commodités à proximité...
Détails de l'annonce
Localisation
Ville
Brux
Pays
FR
Diagnostics / Énergie
Diagnostic DPE
159
Diagnostic GES
5
Chauffage et diagnostics
Diagnostic de performance énergétique (DPE)
a
b
c
d
e
f
g
Indice d'émission de gaz à effet de serre (GES)
a
b
c
d
e
f
g
