Type
Bien immobilierTarif
591 000 €Chambres
10Salles de bain
0Vente Maison de ville 14 pièces
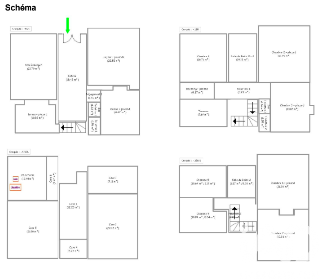
Iad France - Marie-Rose Gilles vous propose : Demeure bourgeoise d'exception, maison de maître, classée Site Patrimoine Remarquable. Datant du 19è siècle avec son parc protégé, au coeur de Grenoble, elle se situe dans un cadre calme et paysager. Idéale pour projet familial, habitat partagé, participatif, collectif, colocation, professionnels, bureaux, artisans voire pour marchands de bien et investisseurs. Elle est idéalement située à 2 pas du centre ville, sur une parcelle de 818 m². Elle est entièrement à rénover. Coût estimatif des travaux pour améliorer la consommation énergétique de la maison suivant solutions proposées par l'audit énergétique : environ 107K€ (isolation des murs, de la toiture, remplacement des menuiseries extérieures, installation d'une pompe à chaleur air / eau, modification du système d'ECS, changement du système de ventilation, A noter que le PLUI préserve cette demeure, et les arbres du jardin, et interdit sa démolition. Quelques prestations : - Chaudière individuelle gaz récente. - WC à chaque étage - SDB au R + 1 et au R + 2 - Sous-sol complet - Murs en pierre de taille et moellons - terrasse au premier étage - Grand garage (environ 30 m²) - Demi sous-sol complet Contactez moi pour tout renseignement ou visite Honoraires d'agence à la charge du vendeur. Information d'affichage énergétique sur ce bien : classe ENERGIE F indice 358 et classe CLIMAT F indice 7. Les informations sur les risques auxquels ce bien est exposé, y compris l'obligation légale de débroussaillement, sont disponibles sur le site Géorisques : http://www.georisques.gouv.fr. La présente annonce immobilière a été rédigée sous la responsabilité éditoriale de Mme Marie-Rose Gilles mandataire indépendant en immobilier (sans détention de fonds), agent commercial de la SAS I@D France immatriculé au RSAC de GRENOBLE sous le numéro 478110612, titulaire de la carte de démarchage immobilier pour le compte de la société I@D France SAS.
À proximité
Recherche des commodités à proximité...
Détails de l'annonce
Localisation
Ville
Grenoble
Pays
FR
Diagnostics / Énergie
Diagnostic DPE
358
Diagnostic GES
7
Surfaces / Pièces / Composition
Nombre d’étages
3
Chauffage et diagnostics
Diagnostic de performance énergétique (DPE)
a
b
c
d
e
f
g
Indice d'émission de gaz à effet de serre (GES)
a
b
c
d
e
f
g
