Type
Bien immobilierTarif
69 000 €Chambres
4Salles de bain
0Vente Maison de village 5 pièces
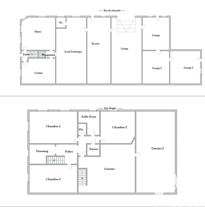
Iad France - Julien Jackowski vous propose : * FORT POTENTIEL pour cette Maison de Village à Rénover totalement avec dépendances et terrain - Charme Authentique - * Nichée au cOEur du village d'Herméville-en-Woëvre, à 7 minutes d'Etain, 20 minutes de Verdun, 10 minutes de Fresnes-en-Woëvre, cette maison de village offre un potentiel exceptionnel pour les amateurs de rénovation. Avec une partie habitable de 157 m² sur deux étages (séjour, cuisine, 4 chambres, salle de bains, sauna, greniers ), elle offre de multiples possibilités d'aménagements. De nombreuses dépendances : que ce soit les greniers, l'atelier, la grange, le garage, les écuries, etc. plusieurs centaines de m² de dépendances ou de stockage à exploiter (activité agricole, artisan, stockage, etc. ) + avec un terrain clôturé à l'arrière d'environ 350 m² avec accès par les dépendances et accès par un chemin communal. * Avantages * : 1. * Potentiel de Rénovation * : Offrant une toile blanche pour exprimer votre créativité et façonner une demeure qui vous ressemble. 2. * Charme Authentique * : Profitez du caractère préservé de cette maison de village et créez un lieu de vie chaleureux et unique. 3. * Terrain * :qui permet d'envisager un magnifique jardin, un potager, ou tout autre aménagement extérieur selon vos souhaits. * Localisation * : Bénéficiant d'un emplacement au calme dans un village pittoresque, cette propriété offre un cadre de vie tranquille et authentique, tout en étant à proximité des commodités de la ville d'Etain. * Travaux à Prévoir * : Une rénovation complète est à prévoir pour redonner vie à cette maison, offrant ainsi l'opportunité de construire un chez-soi sur mesure, à votre image. N'attendez plus pour concrétiser votre projet de rénovation et redonner vie à cette charmante maison de village. Contactez-moi pour organiser une visite et laissez libre cours à votre imagination pour créer le cocon de vos rêves. Honoraires d'agence à la charge du vendeur. Information d'affichage énergétique sur ce bien : classe ENERGIE G indice 468 et classe CLIMAT C indice 15. Les informations sur les risques auxquels ce bien est exposé, y compris l'obligation légale de débroussaillement, sont disponibles sur le site Géorisques : http://www.georisques.gouv.fr. La présente annonce immobilière a été rédigée sous la responsabilité éditoriale de M Julien Jackowski mandataire indépendant en immobilier (sans détention de fonds), agent commercial de la SAS I@D France immatriculé au RSAC de BRIEY sous le numéro 901443572, titulaire de la carte de démarchage immobilier pour le compte de la société I@D France SAS.
À proximité
Recherche des commodités à proximité...
Détails de l'annonce
Localisation
Ville
Herméville-en-Woëvre
Pays
FR
Diagnostics / Énergie
Diagnostic DPE
468
Diagnostic GES
15
Surfaces / Pièces / Composition
Nombre d’étages
2
Chauffage et diagnostics
Diagnostic de performance énergétique (DPE)
a
b
c
d
e
f
g
Indice d'émission de gaz à effet de serre (GES)
a
b
c
d
e
f
g
