Type
Bien immobilierTarif
120 000 €Chambres
3Salles de bain
0Vente Maison/villa 4 pièces
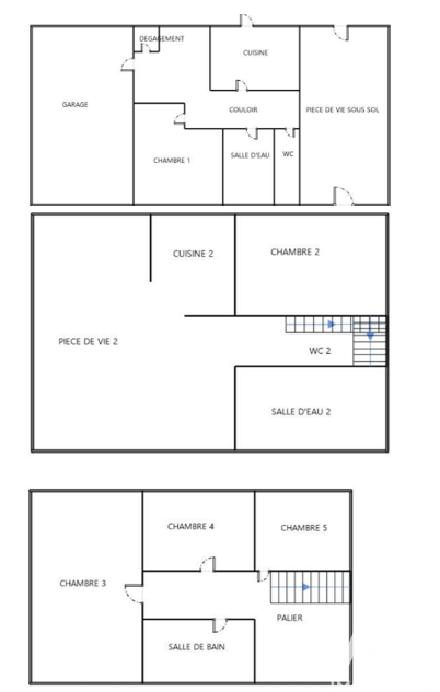
Iad France - Vincent Fargal vous propose : Sur la commune de Saint Sixte, 5 minutes de Caudecoste / 15 minutes d'Agen Venez découvrir cette jolie maison à rénover avec étage de 110 m² environ avec atelier. Elle se compose d'un un séjour d'environ 40 m² avec sa belle cheminée, une cuisine séparée, 1 chambre, salle d’eau, un WC en rdc. Pour l’étage 2 chambres supplémentaires avec un espace wc avec possibilité de création d’une salle d’eau supplémentaire. Côté extérieur, une belle terrasse, un atelier et une parcelle clôturé de 1300 m² viennent compléter cette maison. Confort : cheminée avec insert, PAC air / air, menuiserie bois double vitrage Honoraires d'agence à la charge de l'acquéreur. Prix honoraires inclus : 120000 euros. Prix hors honoraires : 111000 euros. Honoraires TTC à la charge de l'acquéreur (8,11% du prix du bien hors honoraires) : 9000 euros. Information d'affichage énergétique sur ce bien : classe ENERGIE D indice 245 et classe CLIMAT B indice 7. Les informations sur les risques auxquels ce bien est exposé, y compris l'obligation légale de débroussaillement, sont disponibles sur le site Géorisques : http://www.georisques.gouv.fr. La présente annonce immobilière a été rédigée sous la responsabilité éditoriale de M Vincent Fargal mandataire indépendant en immobilier (sans détention de fonds), agent commercial de la SAS I@D France immatriculé au RSAC de AGEN sous le numéro 884324393, titulaire de la carte de démarchage immobilier pour le compte de la société I@D France SAS.
Cette semaine
Cette annonce est récente
À proximité
Recherche des commodités à proximité...
Détails de l'annonce
Localisation
Ville
Saint-Sixte
Pays
FR
Diagnostics / Énergie
Diagnostic DPE
245
Diagnostic GES
7
Finances / Mandat / Références
Honoraires
9 €
Chauffage et diagnostics
Diagnostic de performance énergétique (DPE)
a
b
c
d
e
f
g
Indice d'émission de gaz à effet de serre (GES)
a
b
c
d
e
f
g
