Type
Bien immobilierTarif
299 000 €Chambres
4Salles de bain
0Vente maison/villa 6 pièces
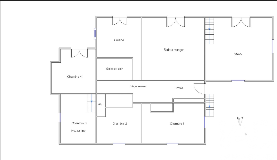
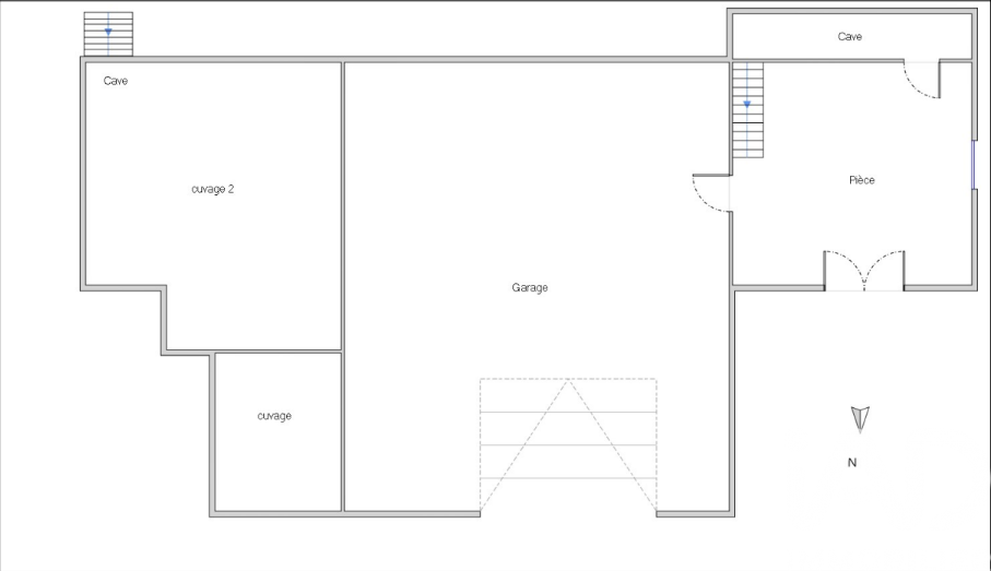
Iad France - Damien Guillaumond vous propose : * Belle Maison avec Beau Potentiel à Vic-le-Comte - Idéal pour les Amoureux de la Nature * Découvrez cette spacieuse maison construite en 1987 située à Vic-le-Comte, offrant un véritable havre de paix au cOEur de la nature. Avec une surface habitable d'environ 170 m² et un vaste terrain de 2582 m², cette propriété est parfaite pour une famille en quête d'espace et de tranquillité. Nous retrouvons : - Entrée avec rangement - Salon séjour cuisine d'environ 60 m² donnant sur une terrasse extérieur exposée Sud Ouest - 3 ou 4 chambres spacieuses (De 16 m² à 21 m²) offrant de belles possibilités d'aménagement (chambre en enfilade, voir plan) - 1 Salle de bain - 1 WC En Rez-de-jardin : Espace bureau de 21 m² avec porte fenêtre donnant sur l'extérieur Garage de 100 m² Atelier Grande cave voutée Enorme potentiel pour cette maison qui nécessite des travaux d'isolation et d'aménagement. N'hésitez pas à me contacter pour plus d'informations ! Honoraires d'agence à la charge du vendeur. Information d'affichage énergétique sur ce bien : classe ENERGIE E indice 325 et classe CLIMAT B indice 10. Les informations sur les risques auxquels ce bien est exposé, y compris l'obligation légale de débroussaillement, sont disponibles sur le site Géorisques : http://www.georisques.gouv.fr. La présente annonce immobilière a été rédigée sous la responsabilité éditoriale de M Damien Guillaumond mandataire indépendant en immobilier (sans détention de fonds), agent commercial de la SAS I@D France immatriculé au RSAC de CLERMONT FERRAND sous le numéro 940922123, titulaire de la carte de démarchage immobilier pour le compte de la société I@D France SAS.
Cette semaine
Cette annonce est récente
À proximité
Recherche des commodités à proximité...
Détails de l'annonce
Localisation
Ville
Vic-le-Comte
Pays
FR
Diagnostics / Énergie
Diagnostic DPE
325
Diagnostic GES
10
Chauffage et diagnostics
Diagnostic de performance énergétique (DPE)
a
b
c
d
e
f
g
Indice d'émission de gaz à effet de serre (GES)
a
b
c
d
e
f
g
