Type
Bien immobilierTarif
221 000 €Chambres
2Salles de bain
0Vente Maison/villa 3 pièces
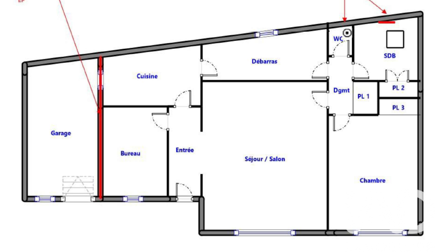
Iad France - Sandra Le Grix vous propose : * NOUVEAUTÉ – MAISON DE PLAIN-PIED NON MITOYENNE –SAINTE CECILE * Venez découvrir cette maison entièrement de plain-pied, non mitoyenne, située dans le secteur recherché Sainte cecile Elle se compose : -d’une entrée -d’une première chambre -d’une cuisine fermée avec arrière-cuisine -d’un séjour lumineux exposé plein Sud avec accès direct au jardin -d’un WC séparé -d’une salle de douche -d’une seconde grande chambre Pour plus de confort vous disposez aussi d'un garage Aucun travaux à prévoir : -Chaudière récente (2020) -Toit terrasse refait en 2022 -Fenêtres remplacées en 2021 Les + du bien : -Nombreux rangements -Fibre installée -Proche des transports et des commodités Bien rare à la vente À visiter sans tarder Honoraires d'agence à la charge du vendeur. Information d'affichage énergétique sur ce bien : classe ENERGIE F indice 396 et classe CLIMAT F indice 87. Les informations sur les risques auxquels ce bien est exposé, y compris l'obligation légale de débroussaillement, sont disponibles sur le site Géorisques : http://www.georisques.gouv.fr. La présente annonce immobilière a été rédigée sous la responsabilité éditoriale de Mme Sandra Le Grix mandataire indépendant en immobilier (sans détention de fonds), agent commercial de la SAS I@D France immatriculé au RSAC de Le Havre sous le numéro 878459502, titulaire de la carte de démarchage immobilier pour le compte de la société I@D France SAS.
À proximité
Recherche des commodités à proximité...
Détails de l'annonce
Localisation
Ville
Le Havre
Pays
FR
Diagnostics / Énergie
Diagnostic DPE
396
Diagnostic GES
87
Chauffage et diagnostics
Diagnostic de performance énergétique (DPE)
a
b
c
d
e
f
g
Indice d'émission de gaz à effet de serre (GES)
a
b
c
d
e
f
g
