Type
Bien immobilierTarif
264 000 €Chambres
4Salles de bain
0Vente Maison/villa 6 pièces
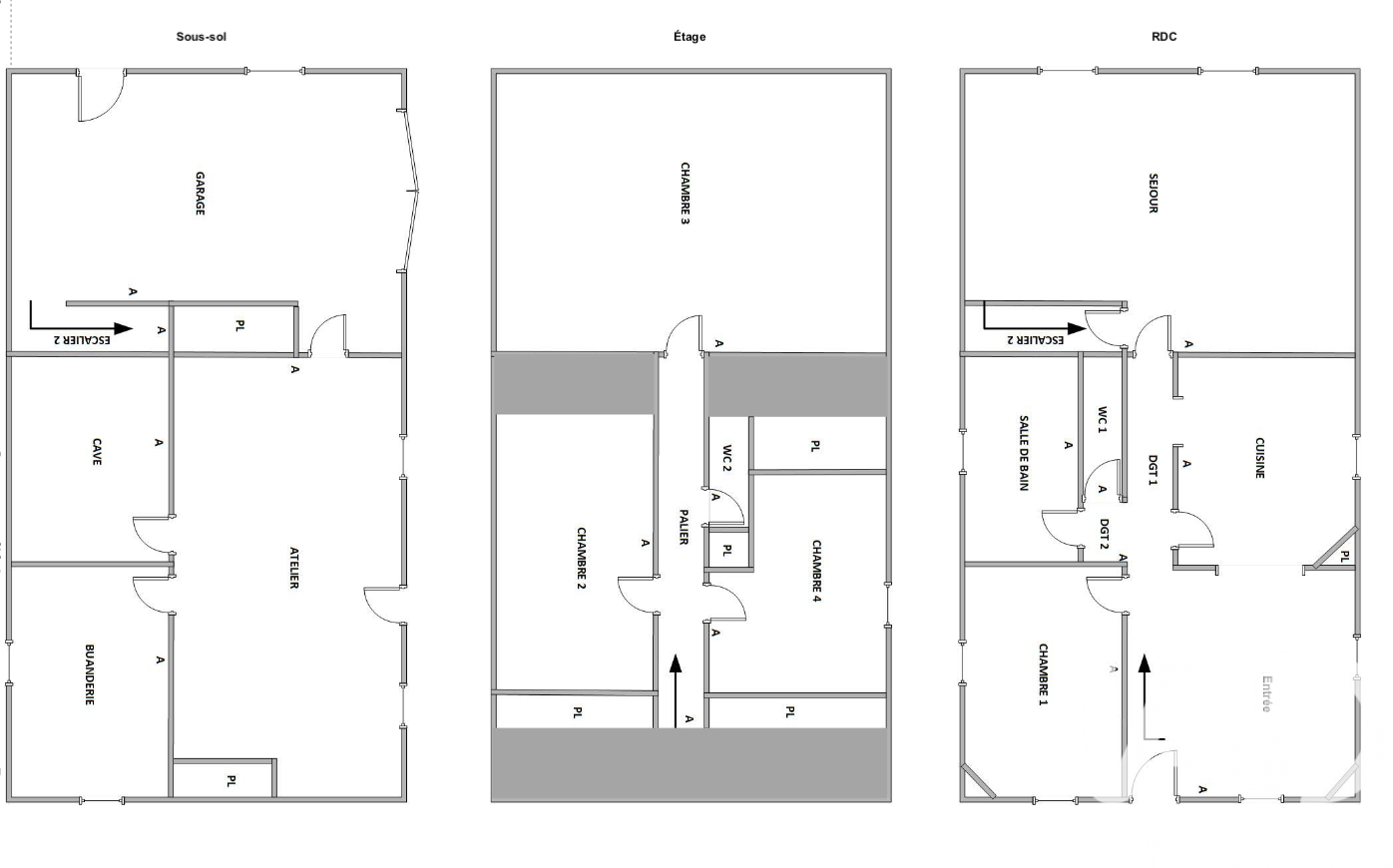
Iad France - Kévin Le Govic vous propose : Charme des Années 30 & Vue Dégagée sur la Vallée de l'Eure Laissez-vous séduire par cette maison de caractère de 135 m², dont le style néo-normand avec ses faux colombages apporte un cachet unique et chaleureux. Idéalement située à Jouy, vous profiterez d'un cadre verdoyant tout en restant à seulement 5-10 minutes à pied de la gare (Ligne Paris-Montparnasse / Chartres), des écoles et des commerces. Un Intérieur Spacieux et Lumineux Le rez-de-chaussée s'ouvre sur une entrée accueillante dotée d'un insert, communiquant avec une cuisine aménagée et équipée. Vous découvrirez ensuite : Une extension récente : Un vaste séjour baigné de lumière offrant une vue imprenable et dégagée sur la nature environnante. Le charme de l'ancien : Une chambre avec parquet en chêne massif et cheminée en marbre. Confort : Une salle de bains avec douche et un WC indépendant. À l’étage, le palier dessert 3 chambres optimisées avec de nombreux rangements sous pente. Un WC est déjà présent, avec la possibilité d'installer facilement une douche (arrivées et évacuations déjà en place). Sous-Sol Complet et Extérieurs Soignés La maison est édifiée sur un sous-sol total non enterré, offrant un espace fonctionnel rare : garage, atelier, buanderie-chaufferie et cave. Côté jardin, la parcelle d'environ 600 m² est parfaitement entretenue. Elle dispose d'une terrasse pour vos repas d'été, d'un cabanon de jardin et d'un terrain joliment aménagé. Les Atouts Techniques Chauffage : Gaz de ville (chaudière récente). Isolation : Fenêtres en PVC double vitrage. Équipements : Adoucisseur d'eau. Localisation : Environnement calme, balades en bord d'Eure accessibles immédiatement. NE LOUPEZ PAS CETTE OPPORTUNITÉ UNIQUE ! Honoraires d'agence à la charge du vendeur. Information d'affichage énergétique sur ce bien : classe ENERGIE D indice 242 et classe CLIMAT D indice 38. Les informations sur les risques auxquels ce bien est exposé, y compris l'obligation légale de débroussaillement, sont disponibles sur le site Géorisques : http://www.georisques.gouv.fr. La présente annonce immobilière a été rédigée sous la responsabilité éditoriale de M Kévin Le Govic mandataire indépendant en immobilier (sans détention de fonds), agent commercial de la SAS I@D France immatriculé au RSAC de CHARTRES sous le numéro 979616398, titulaire de la carte de démarchage immobilier pour le compte de la société I@D France SAS.
Ce mois
Cette annonce est récente
À proximité
Recherche des commodités à proximité...
Détails de l'annonce
Localisation
Ville
Jouy
Pays
FR
Diagnostics / Énergie
Diagnostic DPE
242
Diagnostic GES
38
Surfaces / Pièces / Composition
Nombre d’étages
2
Chauffage et diagnostics
Diagnostic de performance énergétique (DPE)
a
b
c
d
e
f
g
Indice d'émission de gaz à effet de serre (GES)
a
b
c
d
e
f
g
