INVESTISSEMENT LOCATIF CHÂLON EN CHAMPAGNE Résidence Seniors Les Fleurs de Vigne 6,06 % de rentabilité
Publié le 26 September 2025
Type
Bien immobilierTarif
92 699 €Chambres
0Salles de bain
0INVESTISSEMENT LOCATIF CHÂLON EN CHAMPAGNE Résidence Seniors Les Fleurs de Vigne 6,06 % de rentabilité
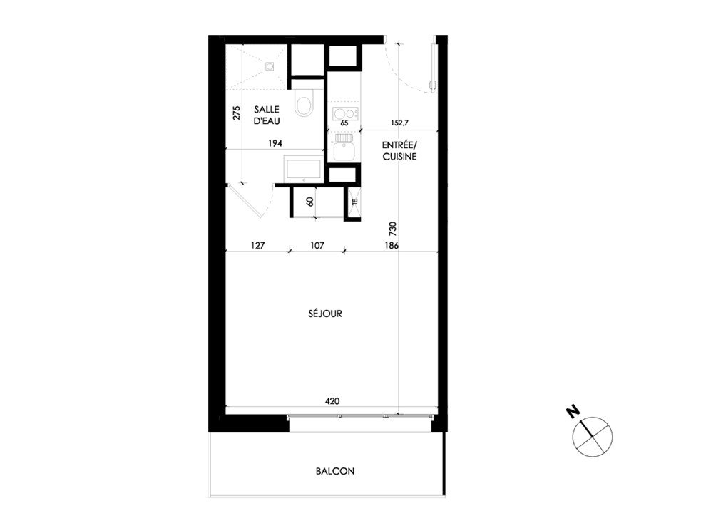
Réalisez un investissement locatif sécurisé dans une résidence seniors neuve, en activité depuis juillet 2025, sans souci de gestion : le produit idéal pour vous constituer un patrimoine immobilier tout en bénéficiant d'une forte rentabilité, sécurisée par des loyers stables dès l'acquisition. Loyer annuel HT : 5 616 Rentabilité : 6,06 % Gestionnaire : Stella Management Vous bénéficiez du statut fiscal LMNP amortissable, permettant une exonération d'impôt sur vos revenus locatifs. Le bien est exploité par un gestionnaire professionnel (Stella), votre locataire, engagé par un bail commercial (à signer lors de l'acquisition) vous assurant le versement des loyers, que le logement soit loué ou non. Description du bien : Ce studio de première main, situé au 3ème étage offre une disposition optimisée et agréable : une entrée avec kitchenette, un séjour ouvert sur un large balcon, une salle d'eau avec wc. L'appartement est entièrement climatisé. À propos de la résidence : La résidence Les Fleurs de Vigne est une résidence services seniors, idéalement située à Châlons-en-Champagne, en plein cur de la ville. Elle se trouve à proximité de la Collégiale Notre-Dame-en-Vaux, des commerces de proximité, des services de santé, du cinéma et de la salle de spectacles « La Comète ». La gare SNCF est à environ 2 km. L'établissement propose une offre de services complète et haut de gamme : espace fitness, restauration de qualité, bibliothèque, salon de coiffure, blanchisserie, espace bien-être, jardins, accueil 24h/24, animations, espaces communs confortables et climatisés, salons privatisables, parking intérieur. La résidence compte environ 94 appartements. À propos du gestionnaire occupant : Stella Management est un gestionnaire spécialisé dans les résidences seniors, exploitant aujourd'hui plus de 35 résidences en France. Porté par une croissance soutenue et une expertise reconnue dans le secteur, Stella s'impose comme un acteur fiable et dynamique de l'hébergement senior. Le coin du LMNP - Paul Delamotte agent basé à NEUILLY SUR SEINE - 01 84 78 46 50 - Plus d'informations sur info@lecoindulmnp.fr réf. 26264 Bien soumis au statut juridique de la Copropriété. Pas de procédure en cours. Prix TTC et Honoraires à charge vendeur TTC
À proximité
Recherche des commodités à proximité...
Détails de l'annonce
Localisation
Ville
CHALONS EN CHAMPAGNE
Pays
France
Surfaces / Pièces / Composition
Surface du terrain
m²
Chauffage / Énergie
Nature de chauffage
Non renseigné
Chauffage et diagnostics
Diagnostic de performance énergétique (DPE)
a
b
c
d
e
f
g
Indice d'émission de gaz à effet de serre (GES)
a
b
c
d
e
f
g
