Type
Bien immobilierTarif
227 000 €Chambres
3Salles de bain
0Vente Maison/villa 5 pièces
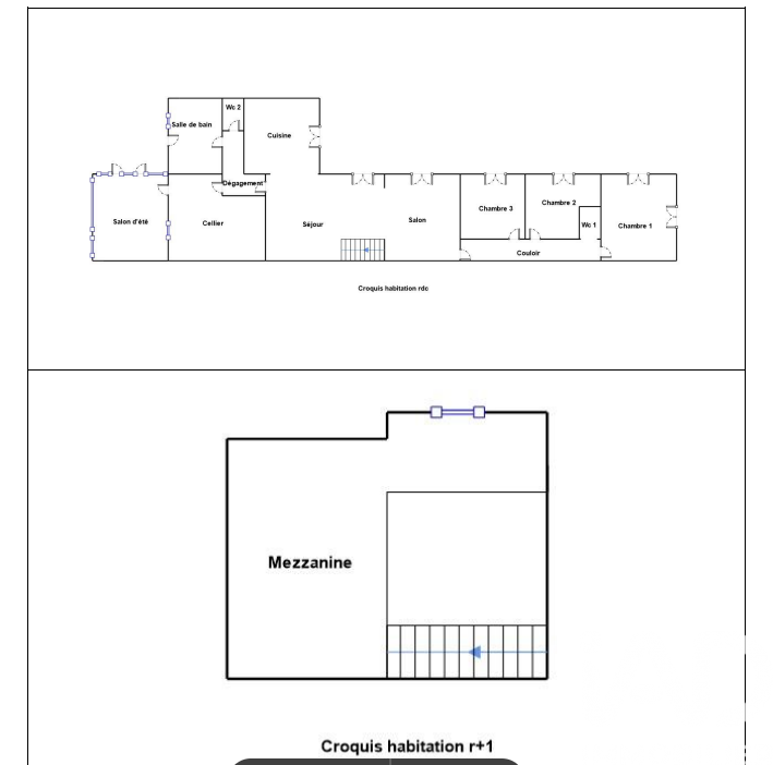
Iad France - Sandrine Magnier vous propose : Et si le calme absolu était à seulement 15 minutes de Libourne ? À Abzac, cette maison en pierre de plain-pied avec mezzanine offre 157 m² habitables sur un terrain arboré de 1 905 m², sans vis-à-vis. Salon de 30 m², cuisine ouverte conviviale, véranda de 25 m² prolongeant la maison toute l'année avec vue sur le jardin. Les pièces s'enchaînent naturellement, du café du matin à la soirée au chaud. 3 chambres bien agencées, salle d'eau avec douche et baignoire, et une mezzanine idéale pour le télétravail ou un espace créatif. Grande dépendance de 62 m², terrasse de 70 m² et portail électrique pour le confort du quotidien. Le jardin arboré et sécurisé est prêt à accueillir les enfants, un potager, une terrasse… Quelques finitions sont à prévoir : une belle occasion de personnaliser à votre goût sans se lancer dans un chantier. Idéal famille cherchant espace, calme et verdure, à deux pas de Libourne et de ses commodités. On visite ? Contactez-moi ! Inter-cabinet Vous êtes agent ou conseiller immobilier et vous disposez d'un acquéreur susceptible d'être intéressé par ce bien ? Contactez-moi pour organiser une visite dans les meilleurs délais. Honoraires d'agence à la charge du vendeur. Information d'affichage énergétique sur ce bien : classe ENERGIE D indice 233 et classe CLIMAT B indice 7. Les informations sur les risques auxquels ce bien est exposé, y compris l'obligation légale de débroussaillement, sont disponibles sur le site Géorisques : http://www.georisques.gouv.fr. La présente annonce immobilière a été rédigée sous la responsabilité éditoriale de Mme Sandrine Magnier mandataire indépendant en immobilier (sans détention de fonds), agent commercial de la SAS I@D France immatriculé au RSAC de LIBOURNE sous le numéro 828398198, titulaire de la carte de démarchage immobilier pour le compte de la société I@D France SAS.
À proximité
Recherche des commodités à proximité...
Détails de l'annonce
Localisation
Ville
Abzac
Pays
FR
Diagnostics / Énergie
Diagnostic DPE
233
Diagnostic GES
7
Chauffage et diagnostics
Diagnostic de performance énergétique (DPE)
a
b
c
d
e
f
g
Indice d'émission de gaz à effet de serre (GES)
a
b
c
d
e
f
g
