Trouver...

Language: FR

Devise: EUR

Vente Maison/villa 8 pièces

Publié le 8 February 2026
Type
Bien immobilier
Tarif
395 000 €
Chambres
4
Salles de bain
0

Vente Maison/villa 8 pièces

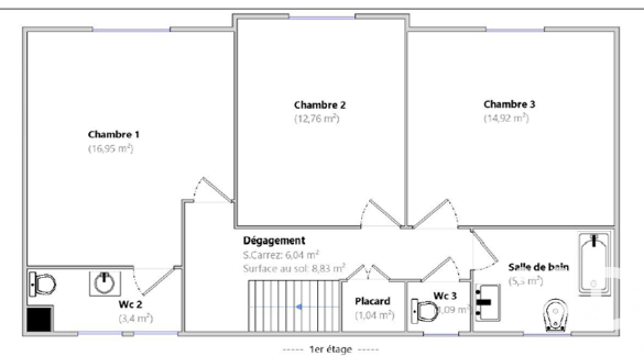
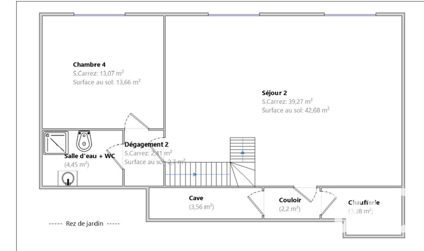
Iad France - Arnaud Michy vous propose : Venez découvrir cette maison de caractère à Trilport, offrant 166 m² habitables, de beaux volumes et un cadre d’exception, avec une magnifique vue sur la Marne et une exposition OUEST. Toutes les pièces principales — chambres, cuisine et séjour — bénéficient de cette exposition, apportant une agréable clarté et offrant à chacune un magnifique panorama sur la Marne. Rez-de-chaussée – Le quotidien pratique et fonctionnel : Le niveau principal accueille les espaces de vie du quotidien. Le salon-séjour, aux belles proportions, est idéal pour les moments de détente ou de réception. La cuisine familiale, tournée vers l’extérieur, permet de profiter pleinement du cadre environnant. Des rangements, un débarras et l’accès direct au garage complètent cet étage fonctionnel et agréable à vivre. Étage – Le coin nuit, calme et apaisant : À l’étage, l’espace nuit offre trois grandes chambres, dont une suite parentale avec sa salle de bain privative et son WC. Les deux autres chambres bénéficient également d’un panorama dégagé sur la Marne et se partagent une seconde salle de bain, ainsi qu’un WC indépendant. Cet étage est entièrement dédié au repos et à l’intimité. Rez-de-jardin – L’espace convivial tourné vers l’extérieur : Le rez-de-jardin est un véritable espace de vie à part entière, pensé pour les moments en famille ou entre amis. La grande pièce de vie type double séjour avec cheminée crée une atmosphère chaleureuse et conviviale. Ce niveau comprend également une 4ᵉ chambre, une salle d’eau avec WC, une cave et une chaufferie. Le double séjour comme la chambre donnent un accès direct à la grande terrasse exposée OUEST, idéale pour les repas d’été et les barbecues, offrant une continuité naturelle avec le jardin. Extérieurs et dépendance : Les extérieurs offrent un cadre rare et recherché. Depuis la terrasse, quelques marches mènent à une charmante petite piscine enterrée, parfaitement intégrée au jardin. Le terrain arrière, d’environ 800 m², se prolonge ensuite jusqu’à une belle dépendance en fond de parcelle, comprenant un hangar et une pièce type cuisine d’été avec mezzanine. À proximité, un terrain de pétanque complète cet espace extérieur, idéal pour profiter pleinement des beaux jours. Un emplacement idéal : Située dans un environnement calme et recherché, la maison bénéficie d’un accès à toutes les commodités (gare, écoles, collège et commerces) en moins de 10 minutes à pied, tout en conservant un cadre de vie privilégié. Un bien au fort potentiel, idéal pour tous types d’acquéreurs : maison familiale, investisseur souhaitant créer deux logements, résidence secondaire pour profiter d’un cadre exceptionnel, ou tout simplement pour ceux qui recherchent un havre de paix au bord de la Marne. Un bien d’exception qui n’attend plus qu’à revivre, alors soyez le premier à saisir cette opportunité et contactez-moi ! Honoraires d'agence à la charge du vendeur. Information d'affichage énergétique sur ce bien : classe ENERGIE F indice 362 et classe CLIMAT F indice 80. Les informations sur les risques auxquels ce bien est exposé, y compris l'obligation légale de débroussaillement, sont disponibles sur le site Géorisques : http://www.georisques.gouv.fr. La présente annonce immobilière a été rédigée sous la responsabilité éditoriale de M Arnaud Michy mandataire indépendant en immobilier (sans détention de fonds), agent commercial de la SAS I@D France immatriculé au RSAC de MEAUX sous le numéro 843388422, titulaire de la carte de démarchage immobilier pour le compte de la société I@D France SAS.

À proximité

Recherche des commodités à proximité...

Détails de l'annonce

Localisation

Ville
Trilport
Pays
FR

Diagnostics / Énergie

Diagnostic DPE
362
Diagnostic GES
80

Surfaces / Pièces / Composition

Nombre d’étages
3

Chauffage et diagnostics

Diagnostic de performance énergétique (DPE)
a
b
c
d
e
f
g
Indice d'émission de gaz à effet de serre (GES)
a
b
c
d
e
f
g
Rappelez-moi