Type
Bien immobilierTarif
107 500 €Chambres
0Salles de bain
0Vente terrain 900 m²
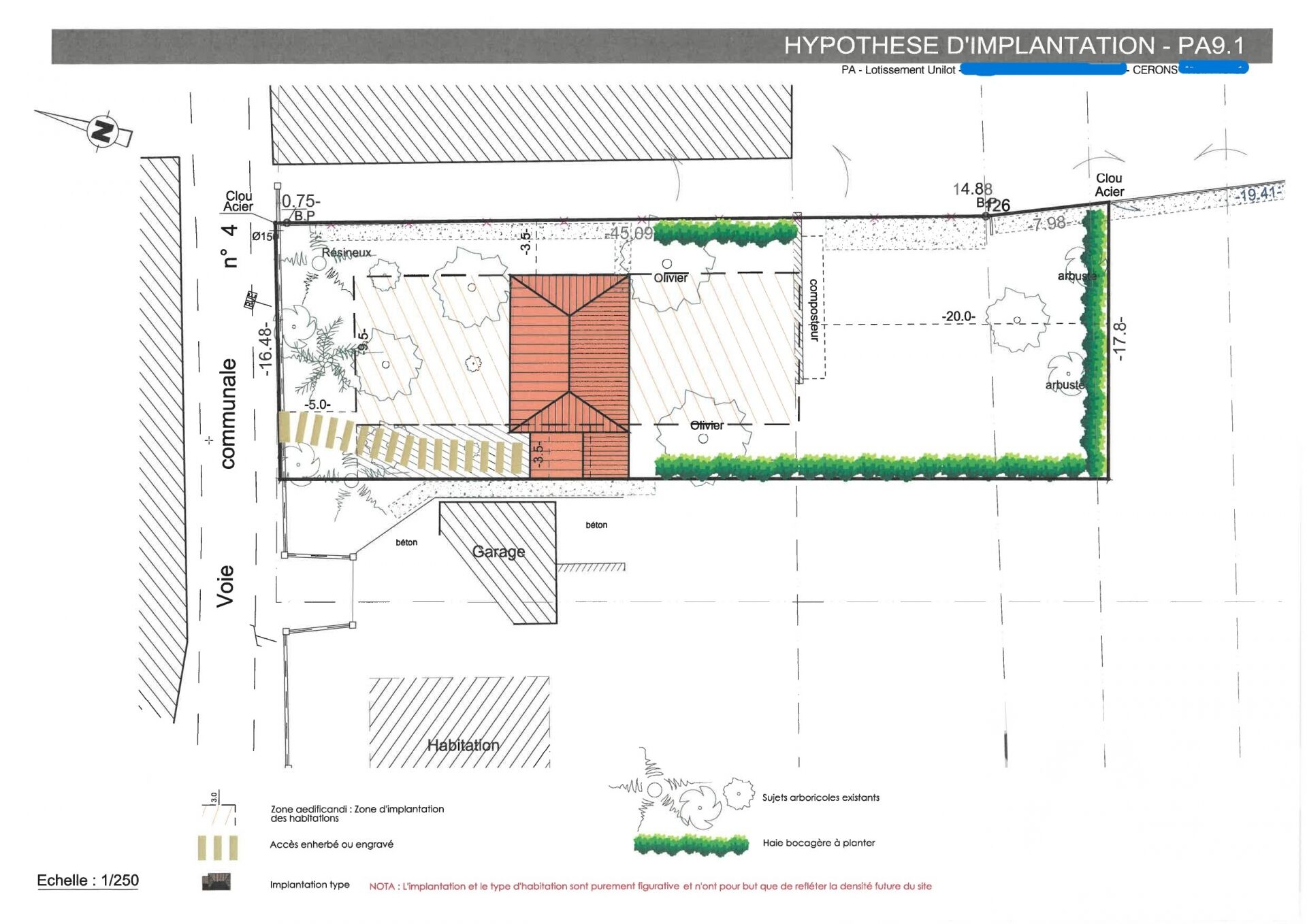
Iad France - Camille Bédouret vous propose : Dans un quartier calme de Cérons, je vous propose de venir découvrir ce terrain à bâtir plat d'une superficie de 900 m² dont une petite partie est en zone A (agricole), en fond de parcelle. La surface de plancher totale allouée à l'opération est de 250 m². Les règles d'urbanisme applicables sont celles du PLU - zone UA. Il sera à viabiliser et l'assainissement sera de type individuel. Projet soumis aux ABF. Honoraires d'agence à la charge du vendeur. Bien non soumis au DPE. Les informations sur les risques auxquels ce bien est exposé, y compris l'obligation légale de débroussaillement, sont disponibles sur le site Géorisques : http://www.georisques.gouv.fr. La présente annonce immobilière a été rédigée sous la responsabilité éditoriale de Mme Camille Bédouret mandataire indépendant en immobilier (sans détention de fonds), agent commercial de la SAS I@D France immatriculé au RSAC de BORDEAUX sous le numéro 528 548 605, titulaire de la carte de démarchage immobilier pour le compte de la société I@D France SAS.
Cette semaine
Cette annonce est récente
À proximité
Recherche des commodités à proximité...
Détails de l'annonce
Localisation
Ville
Cérons
Pays
FR
Surfaces / Pièces / Composition
Nombre d’étages
Chauffage et diagnostics
Diagnostic de performance énergétique (DPE)
a
b
c
d
e
f
g
Indice d'émission de gaz à effet de serre (GES)
a
b
c
d
e
f
g
