Trouver...

Language: FR

Devise: EUR

Vente Immeuble 330 m²

Publié le 13 January 2026
Type
Bien immobilier
Tarif
199 500 €
Chambres
0
Salles de bain
0

Vente Immeuble 330 m²

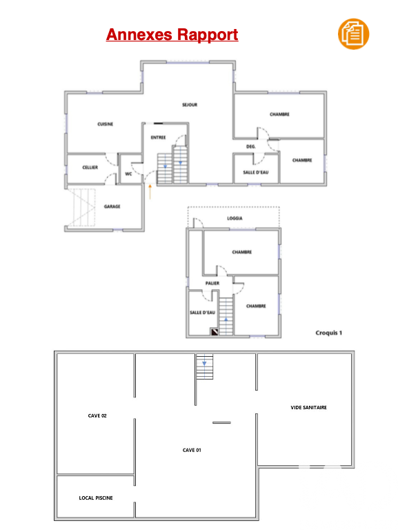
Iad France - Mohamed Kone vous propose : OPPORTUNITÉ D’INVESTISSEMENT – CHÂTELLERAULT Immeuble de rapport + maison de ville – Rentabilité immédiate Prix de vente : 265 000 € Rentabilité brute : 9,36 % Revenus locatifs : 23 880 € / an 5 logements loués COMPOSITION DU BIEN Immeuble de rapport – 4 appartements Logement 1 – RDC gauche | F2 – 60 m² Cuisine, séjour, chambre Salle d’eau (douche) + WC séparé Loyer : 420 € + 20 € de charges Logement 2 – RDC droit | Studio – 40 m² Pièce de vie avec coin cuisine Salle de bains + WC Loyer : 360 € + 30 € de charges Logement 3 – Étage droit | Studio – 40 m² Pièce de vie avec coin cuisine Salle de bains + WC Loyer : 275 € + 20 € de charges Logement 4 – Étage gauche | F2 – 60 m² Grande pièce lumineuse (2 fenêtres) Cuisine, dégagement Salle d’eau avec WC Loyer : 365 € + 30 € de charges Maison de ville indépendante Construction : 1949 130 m² habitables 4 pièces principales Loyer : 450 € + 20 € de charges BILAN FINANCIER Revenus mensuels : 1 990 € Revenus annuels : 23 880 € Taxe foncière : 4 511 € Rentabilité brute : 9,36 % AVANTAGES INVESTISSEUR ✔ Rentabilité immédiate ✔ Demande locative constante ✔ Potentiel d’optimisation des loyers ✔ Bien rare sur le marché : immeuble + maison de ville Honoraires d'agence à la charge du vendeur. Information d'affichage énergétique sur ce bien : classe ENERGIE E indice 315 et classe CLIMAT E indice 68. Les informations sur les risques auxquels ce bien est exposé, y compris l'obligation légale de débroussaillement, sont disponibles sur le site Géorisques : http://www.georisques.gouv.fr. La présente annonce immobilière a été rédigée sous la responsabilité éditoriale de M Mohamed Kone mandataire indépendant en immobilier (sans détention de fonds), agent commercial de la SAS I@D France immatriculé au RSAC de Poitiers sous le numéro 853986198, titulaire de la carte de démarchage immobilier pour le compte de la société I@D France SAS.

À proximité

Recherche des commodités à proximité...

Détails de l'annonce

Localisation

Ville
Châtellerault
Pays
FR

Diagnostics / Énergie

Diagnostic DPE
315
Diagnostic GES
68

Chauffage et diagnostics

Diagnostic de performance énergétique (DPE)
a
b
c
d
e
f
g
Indice d'émission de gaz à effet de serre (GES)
a
b
c
d
e
f
g
Rappelez-moi