Type
Bien immobilierTarif
367 000 €Chambres
6Salles de bain
0Vente Maison traditionnelle 8 pièces
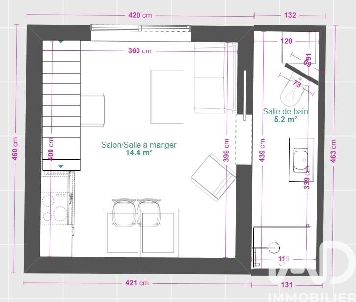
Iad France - Stanley Kollen vous propose : En impasse, au coeur du quartier résidentiel et chaleureux de Chantenay St Yves (Nantes Ouest) Sur parcelle de plus de 220 m², Maison de 6 chambres pour un total au sol de 127 m² entièrement refaite en 2024 / 2025, composée de : 1) La maison principale pour 108 m² au sol ou 98 m² en carrez / boutin au RDC : - Un sas d'entrée de 1,8 m² - Un espace salon / salle à manger de 25 m² - Une cuisine de 8 m² - Un wc Le 1er étage se compose de : - 3 Chambres : 11 m², 11 m² et 9 m² - Une salle d'eau de 4,2 m² avec wc Le 2eme étage se compose de : - 2 chambres avec salle d'eau chacune : 10,5 m² au sol (7,4 m² carrez) et 16,5 m² au sol (12,9 m² carrez) 2) Une dépendance de 19 m² à terminer avec accès indépendant possible par l'arrière de la maison : - La pièce principale fait 14,4 m²m2 et salle d'eau avec WC fait 5,2 m² - En statut hors d'eau / hors d'air - Reste à faire : sol, enduit, peinture Parfait pour bureau ou Air Bnb / Locatif ou un ado A Proximité : Equipements publiques : Ecole maternelle / élémentaire Plessis Cellier, Lycée Camus, Collège Debussy / Médiathèque / Tramway 1 / Parc avec aire de jeux / Equipements de sports (basket, handball, parkour, terrain de roller, pataugeoire) / potager municipaux / Bois Equipements privées : Boulangerie / Beer market / Salle d'escalade / Coté technique : La maison possède une chaudière à gaz à condensation, des doubles vitrages. Maison entièrement refaite : sol, plomberie, électricité, velux, création de chiens assis de la maison, toiture et charpente neuve pour la dépendance Transports : Tram 1 / bus 23,40, 59,81, 91,131, C20 Surfaces détaillées : Surface maison principale en loi Boutin : 98 m² Surface maison principale au sol 108,15 m² Surface de la dépendance 19 m² (non compté dans la maison) Surface total au sol : 108 + 19 = 127 m² Visite virtuelle sur demande Honoraires d'agence à la charge du vendeur. Information d'affichage énergétique sur ce bien : classe ENERGIE C indice 120 et classe CLIMAT C indice 24. Les informations sur les risques auxquels ce bien est exposé, y compris l'obligation légale de débroussaillement, sont disponibles sur le site Géorisques : http://www.georisques.gouv.fr. La présente annonce immobilière a été rédigée sous la responsabilité éditoriale de M Stanley Kollen mandataire indépendant en immobilier (sans détention de fonds), agent commercial de la SAS I@D France immatriculé au RSAC de NANTES sous le numéro 533530770, titulaire de la carte de démarchage immobilier pour le compte de la société I@D France SAS.
Cette semaine
Cette annonce est récente
À proximité
Recherche des commodités à proximité...
Détails de l'annonce
Localisation
Ville
Nantes
Pays
FR
Diagnostics / Énergie
Diagnostic DPE
120
Diagnostic GES
24
Surfaces / Pièces / Composition
Nombre d’étages
2
Chauffage et diagnostics
Diagnostic de performance énergétique (DPE)
a
b
c
d
e
f
g
Indice d'émission de gaz à effet de serre (GES)
a
b
c
d
e
f
g
