Trouver...

Language: FR

Devise: EUR

Vente Maison d'architecte 6 pièces

Publié le 4 March 2026
Type
Bien immobilier
Tarif
1 545 000 €
Chambres
3
Salles de bain
0

Vente Maison d'architecte 6 pièces

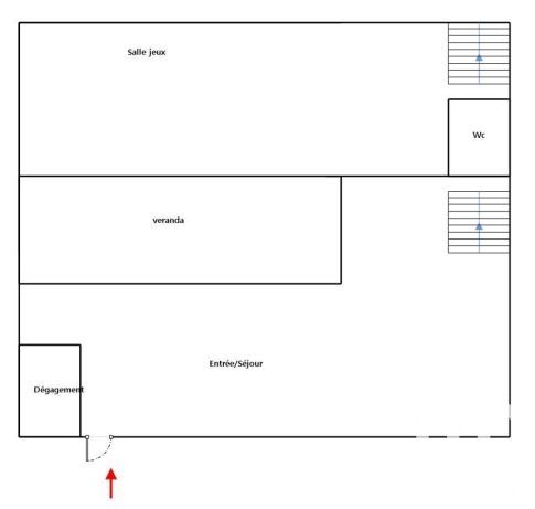
Iad France - Thierry Pichard vous propose : Les Lilas – Quartier Bruyères-Chassagnolle Découvrez cette maison d'architecte de 211,27 m² (loi Carrez), cette propriété de 6 pièces vous accueille dans un écrin de verdure, au calme à l’abri des regards. Construite en 2020 et dotée d'une performance énergétique de classe C, cette bâtisse séduit par son emplacement recherché, à proximité du métro Mairie des Lilas (ligne 11), des écoles, des commerces et du parc familial Lucie Aubrac – un cadre de vie idéal, mêlant confort et praticité. Au rez-de-chaussée découvrez : * Un vaste espace de vie avec son toit cathédrale et son exposition Sud Ouest, sa cuisine ouverte, équipée et aménagée de 101 m², * Un patio de 28.5 m², * Une salle de jeux de 33.11 m², * Un WC séparé, Au premier étage, se trouvent : * Trois chambres dont une de 12.5 m², 12 m² et 10 m² entourant le patio, * Une salle de bains, * Une salle d'eau, * Un WC séparé. Un vaste bureau indépendant de 22 m² (loi Carrez), avec salle d’eau et WC séparés, complète ce bien. Idéal pour une activité libérale ou transformable en studio ou chambre selon vos besoins. Caractéristiques supplémentaires : * Double vitrage, * Fibre optique, * Vidéophone et interphone, * Ballon d'eau chaude, * Syndic bénévole, * Copropriété 2 lots. Un patio intimiste de 28,5 m² à l’abri des regards, un jardin arboré de 110 m² et une élégante terrasse en bois environ de 36 m² offrent un cadre idéal pour des instants de détente ou des soirées en famille. Ne manquez pas cette belle opportunité proche Paris. Contactez-moi dès maintenant pour une visite ! La presente annonce immobiliere vise 2 lots situés dans une copropriété de 5 lots au total et ne faisant l'objet d'aucune procédure en cours citée à l'article L. 721-1 du code de la construction et de l'habitation. Montant moyen mensuel de charges déclaré par le vendeur : 30€ par mois (soit 360 € annuel). Honoraires d'agence à la charge du vendeur. Information d'affichage énergétique sur ce bien : classe ENERGIE C indice 127 et classe CLIMAT A indice 4. Les informations sur les risques auxquels ce bien est exposé, y compris l'obligation légale de débroussaillement, sont disponibles sur le site Géorisques : http://www.georisques.gouv.fr. La présente annonce immobilière a été rédigée sous la responsabilité éditoriale de M Thierry Pichard mandataire indépendant en immobilier (sans détention de fonds), agent commercial de la SAS I@D France immatriculé au RSAC de BOBIGNY sous le numéro 905032827, titulaire de la carte de démarchage immobilier pour le compte de la société I@D France SAS.
Ce mois Cette annonce est récente

À proximité

Recherche des commodités à proximité...

Détails de l'annonce

Localisation

Ville
Les Lilas
Pays
FR

Diagnostics / Énergie

Diagnostic DPE
127
Diagnostic GES
4

Surfaces / Pièces / Composition

Nombre d’étages
2

Chauffage et diagnostics

Diagnostic de performance énergétique (DPE)
a
b
c
d
e
f
g
Indice d'émission de gaz à effet de serre (GES)
a
b
c
d
e
f
g
Rappelez-moi