Type
Bien immobilierTarif
349 000 €Chambres
2Salles de bain
0Vente Appartement 3 pièces
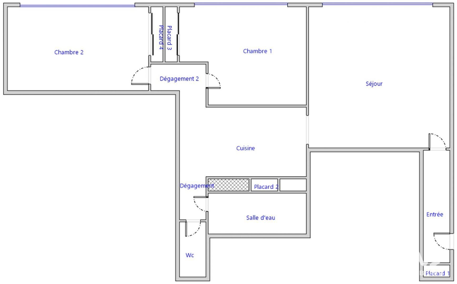
Iad France - Cedric Billiet (07 49 94 69 50) vous propose : Situé en plein centre de Lille, à proximité de la zone piétonne, à 3 minutes de la Grand Place de Lille, à 4 minutes du Métro Lille-Flandres, et proche des gares. Tout se fait à pied. Appartement de 74 m² environ au 1er. étage accessible par une escalier ou un ascenseur. Immeuble de style avec façade préservée. Le logement comporte 2 chambres, 1 séjour, 1 cuisine passante, 1 salle d'eau et 1 WC séparé. Bâtiment sécurisé avec contrôle d'accès dans une copropriété de 51 lots avec charges raisonnables. Appartement immédiatement habitable sans faire de gros travaux. Possibilité d'améliorer significativement le DPE par le changement des menuiseries des chambres et du séjour. La présente annonce immobilière vise 1 lot principal situé dans une copropriété formant 51 lots au total ne faisant l'objet d'aucune procédure en cours et d'un montant de charges d’environ 179 € par mois (soit 2148 € annuel) déclaré par le vendeur. Honoraires d’agence à la charge du vendeur. Information d'affichage énergétique sur ce bien : classe ENERGIE E indice 321 et classe CLIMAT B indice 10. Les informations sur les risques auxquels ce bien est exposé sont disponibles sur le site Géorisques : www.georisques.gouv.fr. La présente annonce immobilière a été rédigée sous la responsabilité éditoriale de M. Cedric Billiet EI (ID 59612), mandataire indépendant en immobilier (sans détention de fonds), agent commercial de la SAS I@D France immatriculé au RSAC de LILLE sous le numéro 538035742, titulaire de la carte de démarchage immobilier pour le compte de la société I@D France SAS. Le présent bien est commercialisé dans le cadre d'une délégation de mandat. Retrouvez tous nos biens sur notre site internet. www.iadfrance.fr.
Cette semaine
Cette annonce est récente
À proximité
Recherche des commodités à proximité...
Détails de l'annonce
Localisation
Ville
Lille
Pays
FR
Diagnostics / Énergie
Diagnostic DPE
321
Diagnostic GES
10
Surfaces / Pièces / Composition
Nombre d’étages
Chauffage et diagnostics
Diagnostic de performance énergétique (DPE)
a
b
c
d
e
f
g
Indice d'émission de gaz à effet de serre (GES)
a
b
c
d
e
f
g
