Type
Bien immobilierTarif
305 320 €Chambres
2Salles de bain
0Vente Appartement 3 pièces
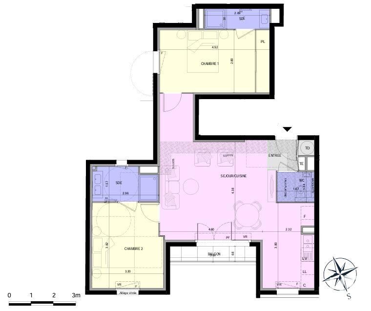
Iad France - Matthieu Chionchini (06 52 78 35 06) vous propose : À VENDRE – Bel appartement T3 de 70 m² environ avec terrasse à Nice Entre Cimiez et le quartier Pasteur, dans un environnement calme et résidentiel, cet ap-partement 3 pièces bénéficie d’un emplacement privilégié, à proximité immédiate des commodi-tés, des transports et de vastes espaces verts. Un cadre de vie idéal entre ville et nature. ________________________________________ Un intérieur lumineux et bien agencé • Vaste pièce de vie avec cuisine ouverte, prolongée par une terrasse privative • Salle de bains équipée, WC indépendant • Finitions soignées : carrelage grand format, menuiseries aluminium, volets motorisés • Confort moderne : double vitrage, régulation thermique individuelle, fibre optique ________________________________________ Un cadre de vie recherché • Quartier paisible, à proximité directe du Paillon et de ses promenades aménagées • Accès rapide aux jardins du Monastère de Cimiez et au parc du Vinaigrier • Commerces de proximité au pied de l’immeuble • Ambiance résidentielle, à quelques minutes seulement du cOEur de Nice ________________________________________ Une excellente accessibilité • Arrêt de bus à 2 minutes à pied (liaisons vers le centre-ville, Port, Las Planas…) • Gare SNCF Nice-Ville à 10 min en voiture • Autoroute A8 accessible en 10 minutes • Aéroport de Nice Côte d’Azur à seulement 20 minutes ________________________________________ Honoraires d’agence à la charge du vendeur. Bien non soumis au DPE. Les informations sur les risques auxquels ce bien est exposé sont disponibles sur le site Géorisques : www.georisques.gouv.fr. La présente annonce immobilière a été rédigée sous la responsabilité éditoriale de M. Matthieu Chionchini EI (ID 85877), mandataire indépendant en immobilier (sans détention de fonds), agent commercial de la SAS I@D France immatriculé au RSAC de Grasse sous le numéro 752939330, titulaire de la carte de démarchage immobilier pour le compte de la société I@D France SAS. Retrouvez tous nos biens sur notre site internet. www.iadfrance.fr.
À proximité
Recherche des commodités à proximité...
Détails de l'annonce
Localisation
Ville
Nice
Pays
FR
Surfaces / Pièces / Composition
Nombre d’étages
Chauffage et diagnostics
Diagnostic de performance énergétique (DPE)
a
b
c
d
e
f
g
Indice d'émission de gaz à effet de serre (GES)
a
b
c
d
e
f
g
