Type
Bien immobilierTarif
241 771 €Chambres
0Salles de bain
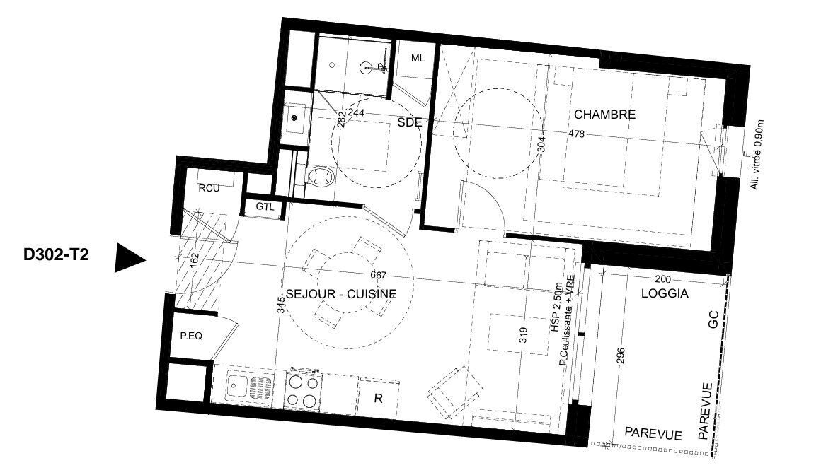
0Vente Appartement 2 pièces
Iad France - Amélie Davin (06 50 71 40 30) vous propose : LA ROCHELLE - PORT NEUF Quartier attractif et animé, toutes les commodités accessibles à pied, au pied du Stade Marcel Deflandre. À 10 min à vélo de l'hypercentre de La Rochelle. Les bus au pied de l'immeuble et la gare à 2 km facilitent vos déplacements. SITUÉ AU 5ème ETAGE AVEC ASCENSEUR : APPARTEMENT DE TYPE T2 COMPRENANT - SEJOUR avec CUISINE OUVERTE - CHAMBRE - SALLE D'EAU AVEC WC. UNE TERRASSE DE 10 m² environ. DERNIERES NORMES EN VIGUEUR RE 2020. UN PARKING INCLUS. Honoraires d’agence à la charge du vendeur. Bien non soumis au DPE. Les informations sur les risques auxquels ce bien est exposé sont disponibles sur le site Géorisques : www.georisques.gouv.fr. La présente annonce immobilière a été rédigée sous la responsabilité éditoriale de Mlle Amélie Davin EI (ID 79786), mandataire indépendant en immobilier (sans détention de fonds), agent commercial de la SAS I@D France immatriculé au RSAC de La Rochelle sous le numéro 501547681, titulaire de la carte de démarchage immobilier pour le compte de la société I@D France SAS. Retrouvez tous nos biens sur notre site internet. www.iadfrance.fr.
Nouveau
Cette annonce est récente
À proximité
Recherche des commodités à proximité...
Détails de l'annonce
Localisation
Ville
La Rochelle
Pays
FR
Surfaces / Pièces / Composition
Nombre d’étages
Chauffage et diagnostics
Diagnostic de performance énergétique (DPE)
a
b
c
d
e
f
g
Indice d'émission de gaz à effet de serre (GES)
a
b
c
d
e
f
g
