Type
Bien immobilierTarif
151 000 €Chambres
1Salles de bain
0Vente Appartement 2 pièces
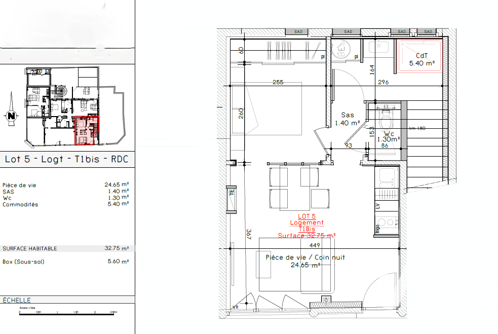
Iad France - Aurélien Joyeux vous propose : Derniers appartements à 150 m de l’océan – Frais de notaire offerts ! À deux pas de l’océan, découvrez cet appartement T1 bis entièrement rénové au sein de la Résidence de la Mer, en rue piétonne et à proximité immédiate des commerces. Livraison 2026, prestations de qualité, cuisine aménagée, exposition sud, belle luminosité. À 15 min de Noirmoutier, idéal pour un pied-à-terre ou un investissement locatif. Plus que 2 appartements disponibles au RDC – Déficit foncier possible. Contactez-moi rapidement. La presente annonce immobiliere vise 2 lots situés dans une copropriété de 22 lots au total et ne faisant l'objet d'aucune procédure en cours citée à l'article L. 721-1 du code de la construction et de l'habitation. Montant moyen mensuel de charges déclaré par le vendeur : 50€ par mois (soit 600 € annuel). Honoraires d'agence à la charge du vendeur. Bien non soumis au DPE. Les informations sur les risques auxquels ce bien est exposé, y compris l'obligation légale de débroussaillement, sont disponibles sur le site Géorisques : http://www.georisques.gouv.fr. La présente annonce immobilière a été rédigée sous la responsabilité éditoriale de M Aurélien Joyeux mandataire indépendant en immobilier (sans détention de fonds), agent commercial de la SAS I@D France immatriculé au RSAC de LA ROCHE SUR YON sous le numéro 100423086, titulaire de la carte de démarchage immobilier pour le compte de la société I@D France SAS.
Ce mois
Cette annonce est récente
À proximité
Recherche des commodités à proximité...
Détails de l'annonce
Localisation
Ville
Notre-Dame-de-Monts
Pays
FR
Chauffage et diagnostics
Diagnostic de performance énergétique (DPE)
a
b
c
d
e
f
g
Indice d'émission de gaz à effet de serre (GES)
a
b
c
d
e
f
g
