Type
Bien immobilierTarif
515 000 €Chambres
1Salles de bain
0Vente Appartement 2 pièces
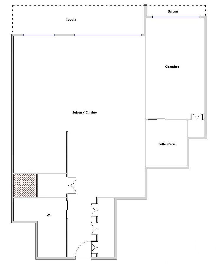
Iad France - Denis Michel vous propose : Au 11ème étage de la Résidence 'Le Belvédère' (1970), venez découvrir ce très bel appartement avec vue dégagée sur Paris et sa proche banlieue. 2 pièces de 56,01 m² (Carrez), ouvert, agencé ainsi : - Un très grand séjour / cuisine (ouverte et équipée) de 38 m² - Une grande chambre séparée de 11,29 m² - Une salle d'eau (douche semi-italienne) - Un wc / labo avec espace buanderie pour la machine à laver et sèche linge - Une loggia de 7,15 m² (séjour / cuisine) et un balcon de 1,67 m² (chambre) - Exposition Nord Est (séjour / cuisine / chambre) - De nombreux rangements Une cave et une place de parking en sous-sol de la résidence complètent ce bien. Résidence de haut standing avec PC de sécurité (gardiens présents 24h / 24,7 jours / 7), vous bénéficiez au dernier étage d'un centre sportif avec : - une salle de sport toute équipée - une piscine intérieure - un sauna - accès à la très belle vue panoramique sur Paris et ses monuments par le biais de sa terrasse (solarium possible) D'autres belles prestations sont à découvrir dans cette belle résidence très bien entretenue : - une bibliothèque / médiathèque - un local avec baby-foot et table de ping-pong - des locaux à poussettes et vélos - espace de jeu privatif pour les enfants A proximité de toutes les commodités (supermarché, commerçants, médecins, etc) transports (bus, métro Ourcq ou Laumière sur la ligne 5), canal de l'Ourcq, Parc des Buttes Chaumont, la Villette. Montant des charges de copropriété (eau et chauffage compris) : 427,33 € / mois Taxe foncière : 1436 € La presente annonce immobiliere vise 3 lots situés dans une copropriété de 1123 lots au total et ne faisant l'objet d'aucune procédure en cours citée à l'article L. 721-1 du code de la construction et de l'habitation. Montant moyen mensuel de charges déclaré par le vendeur : 427.33€ par mois (soit 5128 € annuel). Honoraires d'agence à la charge du vendeur. Information d'affichage énergétique sur ce bien : classe ENERGIE C indice 140 et classe CLIMAT C indice 24. Les informations sur les risques auxquels ce bien est exposé, y compris l'obligation légale de débroussaillement, sont disponibles sur le site Géorisques : http://www.georisques.gouv.fr. La présente annonce immobilière a été rédigée sous la responsabilité éditoriale de M Denis Michel mandataire indépendant en immobilier (sans détention de fonds), agent commercial de la SAS I@D France immatriculé au RSAC de PARIS sous le numéro 534408083, titulaire de la carte de démarchage immobilier pour le compte de la société I@D France SAS.
Ce mois
Cette annonce est récente
À proximité
Recherche des commodités à proximité...
Détails de l'annonce
Localisation
Ville
Paris
Pays
FR
Diagnostics / Énergie
Diagnostic DPE
140
Diagnostic GES
24
Surfaces / Pièces / Composition
Nombre d’étages
26
Étage
11
Chauffage et diagnostics
Diagnostic de performance énergétique (DPE)
a
b
c
d
e
f
g
Indice d'émission de gaz à effet de serre (GES)
a
b
c
d
e
f
g
