Type
Bien immobilierTarif
297 850 €Chambres
0Salles de bain
0Vente Appartement 3 pièces
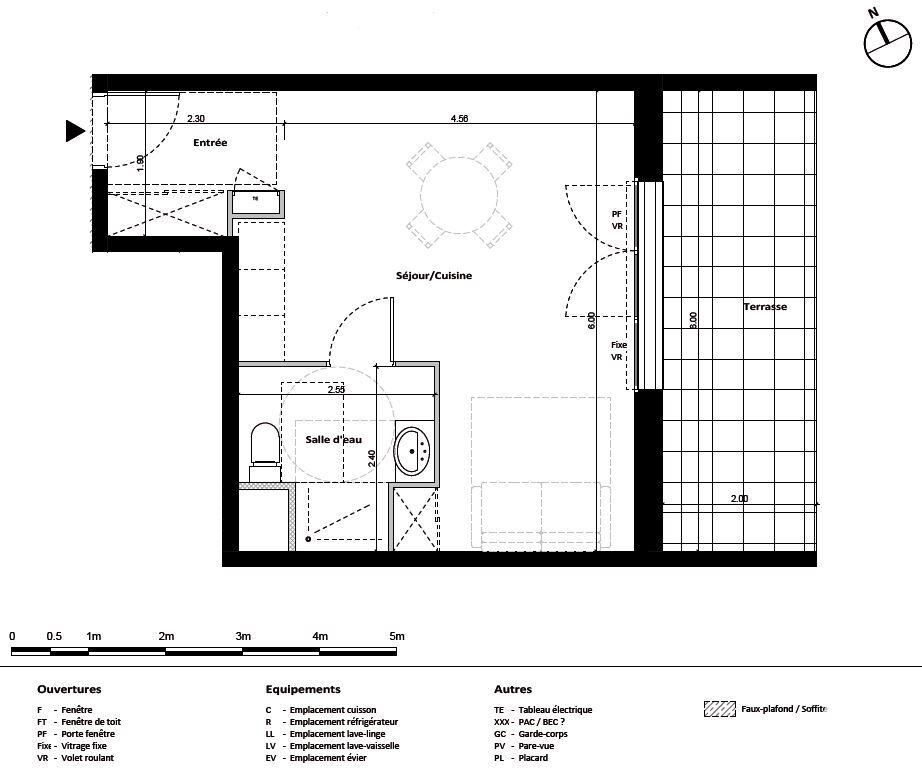
Iad France - Penelope Stoker (06 50 24 86 27) vous propose : Appartement T3 avec deux terrasses et parking à Lunel Dans un environnement résidentiel et urbain, découvrez ce bel appartement T3 situé au 2 ? étage d’un ensemble immobilier récent et qualitatif. D’une surface habitable de 67,68 m² environ, il offre une distribution agréable et fonctionnelle. L’entrée dessert une belle pièce de vie avec séjour et cuisine ouverte de plus de 32 m² environ, idéale pour profiter d’un espace convivial et lumineux. La partie nuit se compose de deux chambres, d’une salle d’eau, d’un WC indépendant ainsi que d’un dégagement permettant une circulation fluide entre les différents espaces. L’appartement bénéficie également de deux terrasses, représentant plus de 18 m² environ d’espaces extérieurs au total. La première terrasse prolonge naturellement la pièce de vie, tandis que la seconde offre un extérieur complémentaire, appréciable au quotidien. Situé dans un secteur vivant de Lunel, le bien profite d’un cadre pratique, à proximité de la vie locale, des commerces, des services et des axes du quotidien, tout en conservant un environnement résidentiel agréable. Un bien idéal pour une résidence principale, un pied-à-terre ou un investissement locatif. Pour plus de renseignements ou pour organiser une visite, n’hésitez pas à me contacter. Honoraires d’agence à la charge du vendeur. Bien non soumis au DPE. Les informations sur les risques auxquels ce bien est exposé sont disponibles sur le site Géorisques : www.georisques.gouv.fr. La présente annonce immobilière a été rédigée sous la responsabilité éditoriale de Mme Penelope Stoker EI (ID 83102), mandataire indépendant en immobilier (sans détention de fonds), agent commercial de la SAS I@D France immatriculé au RSAC de Paris sous le numéro 930194964, titulaire de la carte de démarchage immobilier pour le compte de la société I@D France SAS. Retrouvez tous nos biens sur notre site internet. www.iadfrance.fr.
Ce mois
Cette annonce est récente
À proximité
Recherche des commodités à proximité...
Détails de l'annonce
Localisation
Ville
Lunel
Pays
FR
Surfaces / Pièces / Composition
Nombre d’étages
Étage
2
Chauffage et diagnostics
Diagnostic de performance énergétique (DPE)
a
b
c
d
e
f
g
Indice d'émission de gaz à effet de serre (GES)
a
b
c
d
e
f
g
